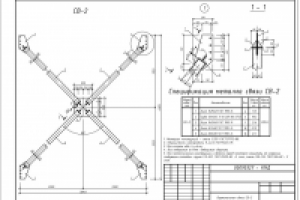
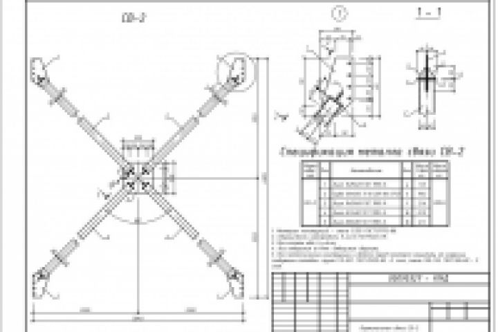
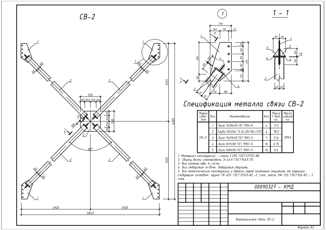
КМД
Для полной функциональности этого сайта необходимо включить JavaScript.
Челябинск
39 лет
На сайте с: 24.09.2012
Игорь Лешок
masslay
Рейтинг: 135
не верифицирован
Всего отзывов:
1
0
Опубликовал заданий:
11
Нейросаммари
Активность:
Работ в портфолио:
30
Типовых услуг:
0
Работ на продажу:
0
Был на сайте:
2026-01-12 в 15:26
Предложить работу
Добавить в избранное
Добавить рекомендацию
Пожаловаться
Инженерия
25
0
КМД
Используемые навыки:
Строительные конструкции
Описание
Решение
Результат
Соавторы
Презентация проекта
Примеры реализации
Описание
Презентация проекта
Оценили проект:
0
×
Оценили проект
×
Авторизация
Для того чтобы оценивать проекты, вам нужно войти на сайт
Другие проекты
Все проекты
КЖ административного здания
КМ
Металлическая рама под оборудование
FREELANCE.RU
Toggle navigation
Нанять фрилансера
Заказчику
Найти по специализации
Найти по услугам
Провести конкурс
Разместить задание
Другое
Найти работу
Фрилансеру
Найти задание
Присоединиться к команде
Участвовать в конкурсе
Другое
Возможности
Для заказчика
Для фрилансера
Вход
Разместить задание
▲