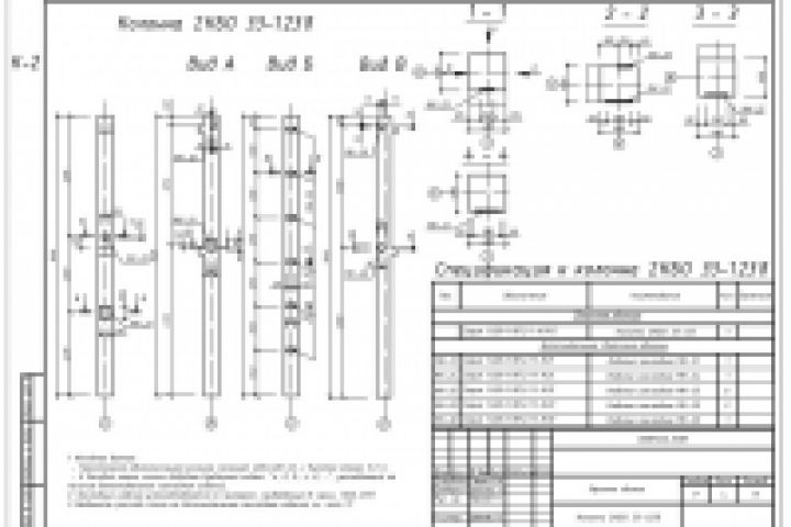
КЖИ административного здания
Для полной функциональности этого сайта необходимо включить JavaScript.
Челябинск
Игорь Лешок
masslay
Рейтинг: 135
не верифицирован
Всего отзывов:
1
0
Опубликовал заданий:
11
Нейросаммари
Активность:
Работ в портфолио:
30
Типовых услуг:
0
Работ на продажу:
0
Возраст:
39 лет
Зарегистрирован:
24.09.2012
Был на сайте:
2026-01-12 в 15:26
Написать Игорь Лешок
Предложить работу
Добавить в избранное
Добавить рекомендацию
Пожаловаться
Инженерия
84
0
КЖИ административного здания
Используемые навыки:
Строительные конструкции
Описание
Решение
Результат
Соавторы
Презентация проекта
Примеры реализации
Описание
Презентация проекта
Оценили проект:
0
×
Оценили проект
×
Авторизация
Для того чтобы оценивать проекты, вам нужно войти на сайт
Другие проекты
Все проекты
КМ
Конструкция металлического парковой сцены
Конструкция металлического склада
FREELANCE.RU
Toggle navigation
Нанять фрилансера
Заказчику
Каталог фрилансеров
Каталог PRO
Каталог студий
Каталог услуг
Каталог работ
Виртуальный HR
Умный поиск
Провести конкурс
Разместить задание
Найти работу
Найти задание
Присоединиться к команде
Участвовать в конкурсе
Предложить услугу
Вход
Разместить задание
▲