Создам для Вас красивый, функциональный и уютный интерьер!

Олеся Бирюкова Gaya

Рейтинг: 129
не верифицирован
Всего отзывов: 0
  • Работ в портфолио: 59
  • Типовых услуг: 0
  • Работ на продажу: 0
  • Возраст: 49 лет
  • Зарегистрирован: 16.03.2009
Была на сайте:

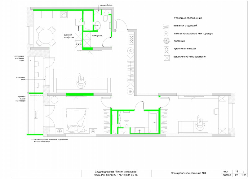
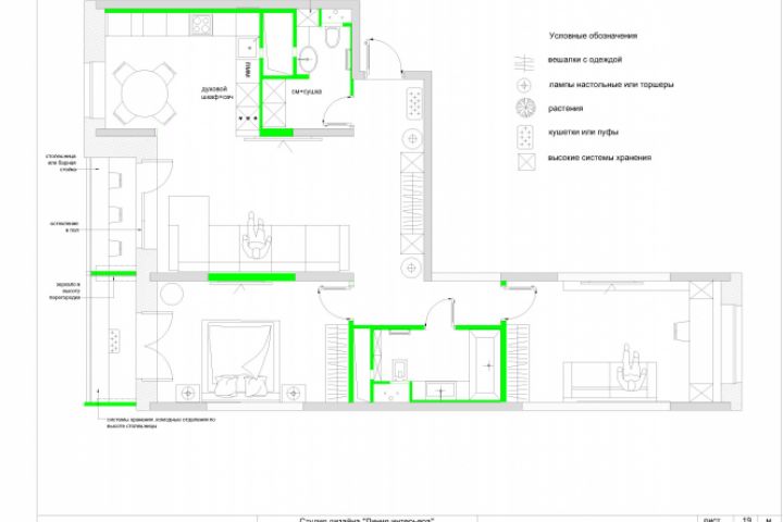
Один из вариантов перепланировки квартиры

Используемые навыки:

Описание

Планировки делаем до утверждения, количество вариантов не ограничиваем


дизайн квартир, дизайн домов, дизайн-проект, дизайнер интерьера, нужен дизайнер интерьера, ищу дизайнера, лучшие дизайнеры интерьера, дизайн-проект квартиры, визуализация, 3д, 3D, дизайн-проект дома, дизайн загородного дома, классический интерьер, современный интерьер, ар-деко интерьер, арт деко дизайн квартиры, лучшие дизайнеры, дизайнер для ремонта квартиры, современная квартира, заказать дизайн квартиры, дизайн коттеджа, реализованные проекты, отзывы, рекомендации, найти дизайнера интерьера, дизайн спальни, дизайн гостиной, интерьер квартиры, интерьер дома, дизайн ванной, красивая квартира, лофт, люкс, планировка квартиры, перепланировка, планировочное решение, авторский надзор, дизайнер Москва, услуги дизайнера интерьера, план, чертеж, развертка, спецификация, современный дизайн, современная классика, неоклассика, ремонт по проекту, двухуровневая квартира, создать интерьер, сделать дизайн интерьера, проект интерьера

Ссылки на примеры реализации

 www.line-interior.ru

Презентация проекта

pic4055279.jpg

Оценили проект:

0