Работа на результат

Татьяна Кабакова graficad.ru

Рейтинг: 279
не верифицирован
Всего отзывов: 13 0
Выполнила заданий: 3
Опубликовала заданий: 55
  • Активность:
  • Работ в портфолио: 109
  • Типовых услуг: 0
  • Работ на продажу: 0
Была на сайте:

Работа 1026087

Используемые навыки:

Описание

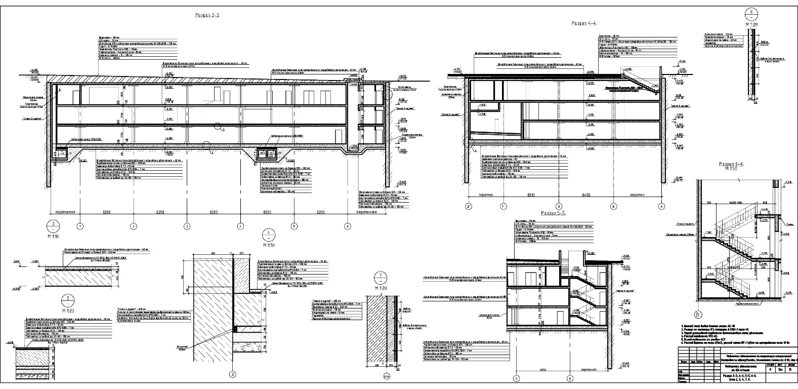
Проект подземной автостоянки, разрезы.

Ссылки на примеры реализации

 www.graficad.ru/nashi_raboty/

Презентация проекта

pic1026087.jpg
Копия разрезы 10.09.08-3-3 4-4 5-5 А1.jpg

Оценили проект:

0