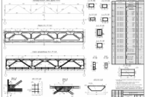
ЖБК, курсовой проект
Для полной функциональности этого сайта необходимо включить JavaScript.
Москва
На сайте с: 31.01.2012
Работа на результат
Татьяна Кабакова
graficad.ru
Рейтинг: 279
не верифицирован
Всего отзывов:
13
0
Выполнила заданий:
3
Опубликовала заданий:
55
Активность:
Работ в портфолио:
109
Типовых услуг:
0
Работ на продажу:
0
Была на сайте:
2023-11-26 в 00:06
Предложить работу
Добавить в избранное
Добавить рекомендацию
Пожаловаться
Инженерия
43
0
ЖБК, курсовой проект
Используемые навыки:
Чертежи/Схемы
Описание
Решение
Результат
Соавторы
Презентация проекта
Примеры реализации
Описание
Презентация проекта
Оценили проект:
0
×
Оценили проект
×
Авторизация
Для того чтобы оценивать проекты, вам нужно войти на сайт
Другие проекты
Все проекты
бктп2
Кладочный план
Ночной интерьер
FREELANCE.RU
Toggle navigation
Нанять фрилансера
Заказчику
Найти по специализации
Найти по услугам
Провести конкурс
Разместить задание
Другое
Найти работу
Фрилансеру
Найти задание
Присоединиться к команде
Участвовать в конкурсе
Другое
Возможности
Для заказчика
Для фрилансера
Вход
Разместить задание
▲