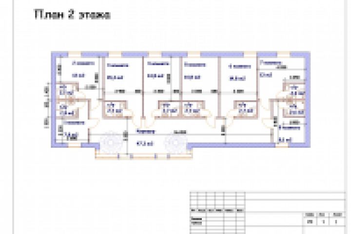
Планировка мини гостиницы
Для полной функциональности этого сайта необходимо включить JavaScript.
Москва
На сайте с: 31.01.2012
Работа на результат
Татьяна Кабакова
graficad.ru
Рейтинг: 279
не верифицирован
Всего отзывов:
13
0
Выполнила заданий:
3
Опубликовала заданий:
55
Активность:
Работ в портфолио:
109
Типовых услуг:
0
Работ на продажу:
0
Была на сайте:
2023-11-26 в 00:06
Предложить работу
Добавить в избранное
Добавить рекомендацию
Пожаловаться
Дизайн пространства
138
0
Планировка мини гостиницы
Используемые навыки:
Архитектура зданий и сооружений
Описание
Решение
Результат
Соавторы
Презентация проекта
Примеры реализации
Описание
Презентация проекта
Оценили проект:
0
×
Оценили проект
×
Авторизация
Для того чтобы оценивать проекты, вам нужно войти на сайт
Другие проекты
Все проекты
Гостиная
Козырьки, спецификация
Планировка дома из бруса 1 этаж
FREELANCE.RU
Toggle navigation
Нанять фрилансера
Заказчику
Найти по специализации
Найти по услугам
Провести конкурс
Разместить задание
Виртуальный HR
Другое
Найти работу
Фрилансеру
Найти задание
Присоединиться к команде
Участвовать в конкурсе
Другое
Возможности
Для заказчика
Для фрилансера
Вход
Разместить задание
▲