Загородный коттедж
Для полной функциональности этого сайта необходимо включить JavaScript.
Санкт-Петербург
Юрий Иванов
yupr
Рейтинг: 1 969
Верифицирован через Сбер ID
Всего отзывов:
1
0
Выполнил заданий:
4
Нейросаммари
Работ в портфолио:
9
Типовых услуг:
0
Работ на продажу:
0
Возраст:
35 лет
Стаж работы:
10 лет
Зарегистрирован:
11.05.2018
Образование:
Бакалавриат
Юридический статус:
Самозанятый
Стоимость услуг (руб):
150 000
за месяц
Был на сайте:
2026-04-19 в 17:05
+79117090554
inbox
uriyper@yandex.ru
Предложить работу
Добавить в избранное
Добавить рекомендацию
Пожаловаться
Инженерия
320
0
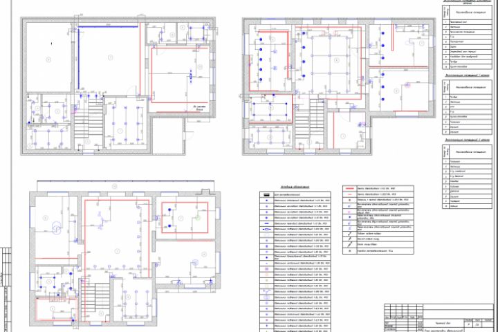
Загородный коттедж
Описание
Решение
Результат
Соавторы
Презентация проекта
Примеры реализации
Описание
Электроснабжение 3-хэтажного коттеджа
Презентация проекта
Оценили проект:
0
×
Оценили проект
×
Авторизация
Для того чтобы оценивать проекты, вам нужно войти на сайт
Другие проекты
Все проекты
Загородный коттедж
Проект ЭОМ магазина
Проект ЭОМ частного дома
FREELANCE.RU
Toggle navigation
Нанять фрилансера
Заказчику
Каталог фрилансеров
Каталог PRO
Каталог студий
Каталог услуг
Каталог работ
Виртуальный HR
Умный поиск
Провести конкурс
Разместить задание
Найти работу
Найти задание
Присоединиться к команде
Участвовать в конкурсе
Предложить услугу
Вход
Разместить задание
▲