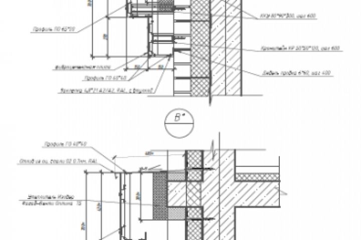
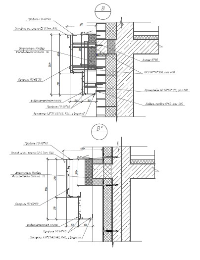
Узлы
Для полной функциональности этого сайта необходимо включить JavaScript.
На сайте с: 18.02.2021
Алёна Дубровина
alyonahoma
Рейтинг: 52
не верифицирован
Всего отзывов:
0
Выполнила заданий:
2
Работ в портфолио:
12
Типовых услуг:
0
Работ на продажу:
0
Была на сайте:
2023-12-20 в 15:49
inbox
telegram
Предложить работу
Добавить в избранное
Добавить рекомендацию
Пожаловаться
Инженерия
10
0
Узлы
Используемые навыки:
Промышленное и гражданское строительство
Описание
Решение
Результат
Соавторы
Презентация проекта
Примеры реализации
Описание
Узлы
Презентация проекта
Оценили проект:
0
×
Оценили проект
×
Авторизация
Для того чтобы оценивать проекты, вам нужно войти на сайт
Другие проекты
Все проекты
Элементы каркаса
Ситуационный план
Эссе на английском языке
FREELANCE.RU
Toggle navigation
Нанять фрилансера
Заказчику
Найти по специализации
Найти по услугам
Провести конкурс
Разместить задание
Другое
Найти работу
Фрилансеру
Найти задание
Присоединиться к команде
Участвовать в конкурсе
Другое
Возможности
Для заказчика
Для фрилансера
Вход
Разместить задание
▲