Рейтинг: 53
не верифицирован
Всего отзывов: 0
  • Работ в портфолио: 3
  • Типовых услуг: 0
  • Работ на продажу: 0
Был на сайте:

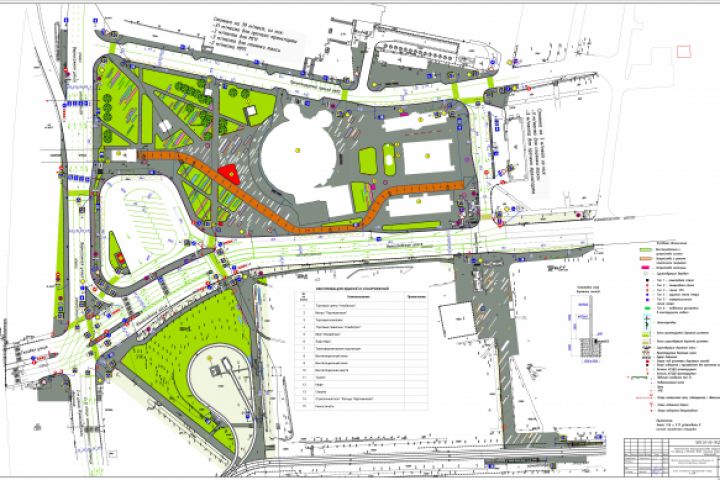
Комплексное благоустройство в радиусе 1200м ст.м. Партизанская

Используемые навыки:

Описание

Проект инженерного обеспечения техническими средствами организации дорожного движения по программе комплексного благоустройства в радиусе 1200м по адресу: г.Москва, ВАО, ст.м. Партизанская. проектом предусмотрено изменение геометрических параметров Измайловского шоссе, Вернисажной ул. и Проектируемого проезда 6605, обустройство отстойно-разворотной площадки общественного транспорта, обустройство остановок общественного транспорта, устройство парковок для автомобилей и такси с обустройством дорожной разметкой и дорожными знаками.

Презентация проекта

pic3426179.jpg

Оценили проект:

0