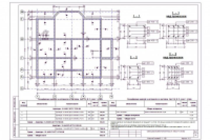
Железобетонный пояс 1 этажа
Для полной функциональности этого сайта необходимо включить JavaScript.
Киев
На сайте с: 25.09.2009
Иван Хоруженко
naviv
Рейтинг: 107
не верифицирован
Всего отзывов:
0
Работ в портфолио:
47
Типовых услуг:
0
Работ на продажу:
0
Был на сайте:
2023-12-28 в 20:57
inbox
archi-con@yandex.ru
Предложить работу
Добавить в избранное
Добавить рекомендацию
Пожаловаться
Дизайн пространства
29
0
Железобетонный пояс 1 этажа
Используемые навыки:
Архитектура зданий и сооружений
Описание
Решение
Результат
Соавторы
Презентация проекта
Примеры реализации
Описание
2 этажный жилой дом
Презентация проекта
Оценили проект:
0
×
Оценили проект
×
Авторизация
Для того чтобы оценивать проекты, вам нужно войти на сайт
Другие проекты
Все проекты
12-Армирование лент фундаментов
Реконструкция кровли
Перекрытие 1 этажа
FREELANCE.RU
Toggle navigation
Нанять фрилансера
Заказчику
Найти по специализации
Найти по услугам
Провести конкурс
Разместить задание
Виртуальный HR
Другое
Найти работу
Фрилансеру
Найти задание
Присоединиться к команде
Участвовать в конкурсе
Другое
Возможности
Для заказчика
Для фрилансера
Вход
Разместить задание
▲