Слова - это еще не дело.

OOO «Простая геометрия» StasyanG

Рейтинг: 81
не верифицирован
Всего отзывов: 0
  • Активность:
  • Работ в портфолио: 11
  • Типовых услуг: 0
  • Работ на продажу: 0
Был на сайте:

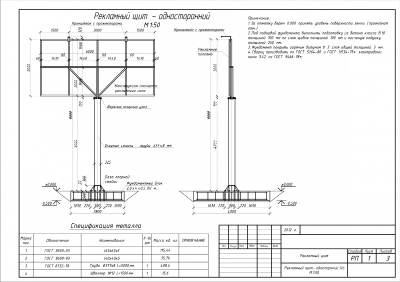
Рекламный щит 3х6 м.

Используемые навыки:

Описание

Рекламному агентству была спроектировано рекламный щит 3х6 м., Проект состоит из расчета и чертежей

Презентация проекта

pic1218885.jpg

Оценили проект:

0