Рейтинг: 46
не верифицирован
Всего отзывов: 0
  • Работ в портфолио: 6
  • Типовых услуг: 0
  • Работ на продажу: 0
Был на сайте:

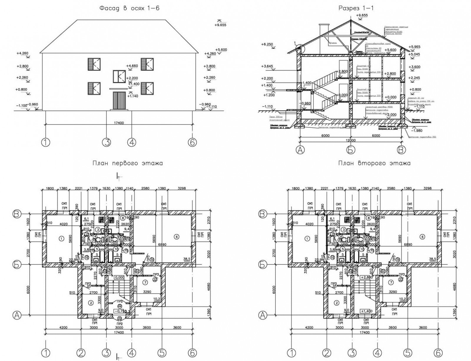
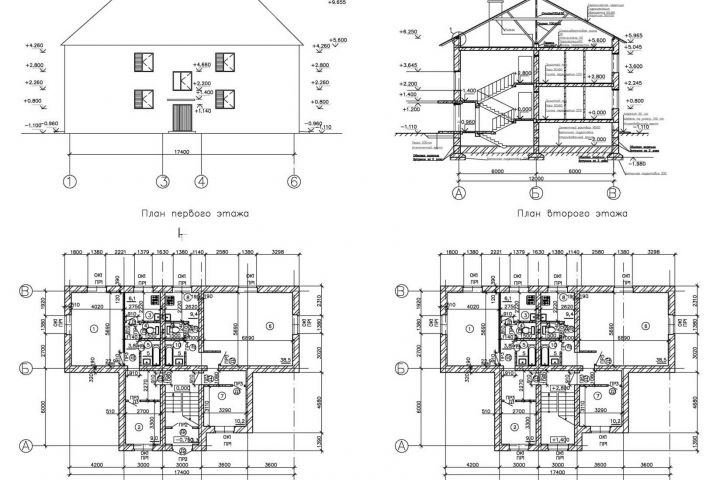
Вычерчивание планов/фасадов/разрезов в AutoCAD

Описание

Вычерчивание планов/фасадов/разрезов в AutoCAD

Презентация проекта

pic4536473.jpg

Оценили проект:

0