Рейтинг: 36
Паспорт верифицирован
Всего отзывов: 0
  • Работ в портфолио: 6
  • Типовых услуг: 0
  • Работ на продажу: 0
Был на сайте:

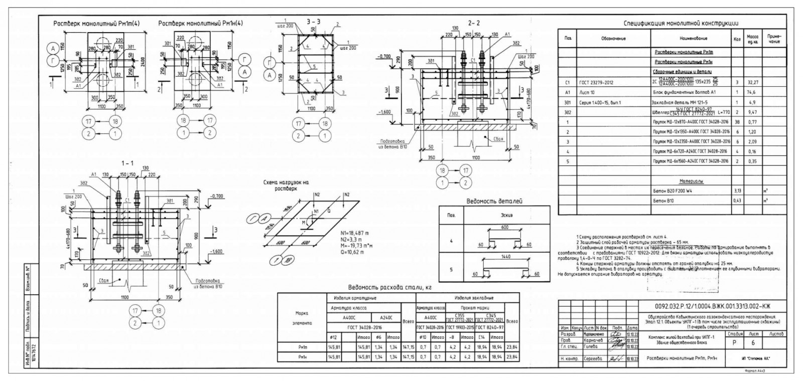
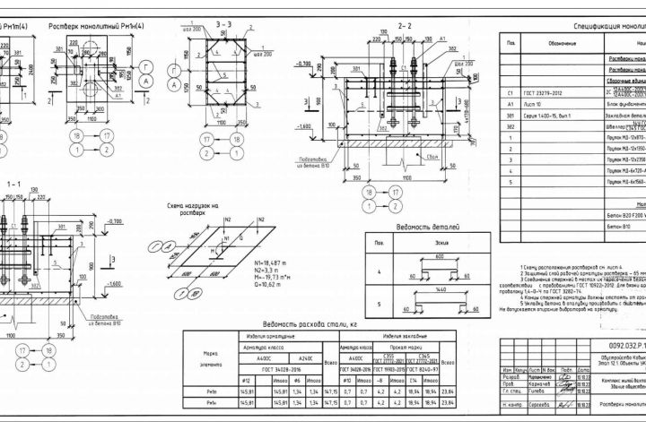
Разработка альбомов КР, КМ, КЖ, КМД

Используемые навыки:

Описание

Расчет конструкций, разработка чертежей, текстовая часть, пояснительная записка, защита в экспертизе

Презентация проекта

pic4537987.jpg

Оценили проект:

0