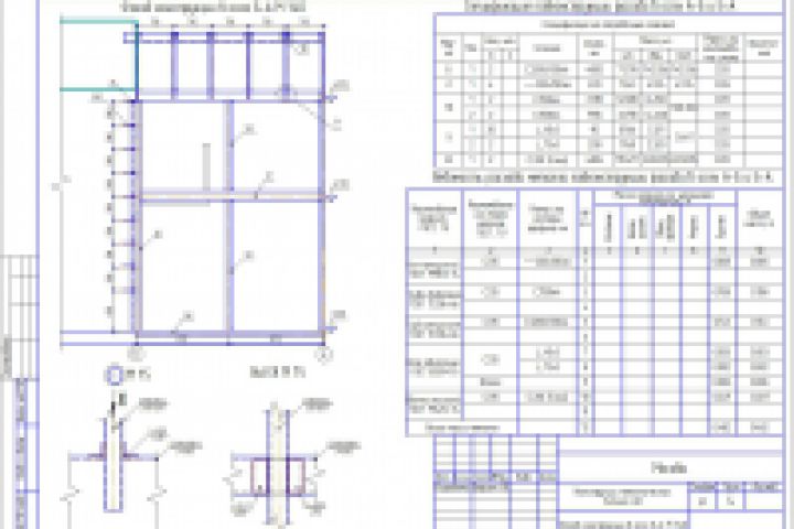
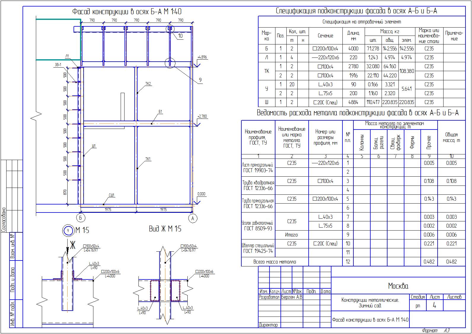
КМ
Для полной функциональности этого сайта необходимо включить JavaScript.
Челябинск
Проектирование. Каркасные дома, фахверк, брус, газобетон и т.д.
Александр Берген
bergen77
Рейтинг: 385
Паспорт верифицирован
Всего отзывов:
22
0
Выполнил заданий:
23
Опубликовал заданий:
17
Активность:
Работ в портфолио:
223
Типовых услуг:
0
Работ на продажу:
0
Зарегистрирован:
11.01.2012
Был на сайте:
2024-02-10 в 10:30
Предложить работу
Добавить в избранное
Добавить рекомендацию
Пожаловаться
Инженерия
36
0
КМ
Используемые навыки:
Строительные конструкции
Описание
Решение
Результат
Соавторы
Презентация проекта
Примеры реализации
Описание
Презентация проекта
Оценили проект:
0
×
Оценили проект
×
Авторизация
Для того чтобы оценивать проекты, вам нужно войти на сайт
Другие проекты
Все проекты
Домик 2,5х5,5 (Малые формы, Санкт-Петербург)
Каркасник 238м2 Москва
Работа 1000299
FREELANCE.RU
Toggle navigation
Нанять фрилансера
Заказчику
Найти по специализации
Найти по услугам
Провести конкурс
Разместить задание
Виртуальный HR
Найти студию
Другое
Найти работу
Фрилансеру
Найти задание
Присоединиться к команде
Участвовать в конкурсе
Предложить услугу
Другое
Возможности
Для заказчика
Для фрилансера
Вход
Разместить задание
▲