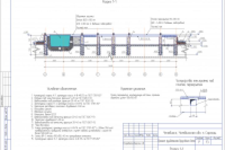
Разрез
Для полной функциональности этого сайта необходимо включить JavaScript.
Челябинск
Проектирование. Каркасные дома, фахверк, брус, газобетон и т.д.
Александр Берген
bergen77
Рейтинг: 385
Паспорт верифицирован
Всего отзывов:
22
0
Выполнил заданий:
23
Опубликовал заданий:
17
Активность:
Работ в портфолио:
223
Типовых услуг:
0
Работ на продажу:
0
Зарегистрирован:
11.01.2012
Был на сайте:
2024-02-10 в 10:30
Предложить работу
Добавить в избранное
Добавить рекомендацию
Пожаловаться
Инженерия
32
0
Разрез
Используемые навыки:
Строительные конструкции
Описание
Решение
Результат
Соавторы
Презентация проекта
Примеры реализации
Описание
Презентация проекта
Оценили проект:
0
×
Оценили проект
×
Авторизация
Для того чтобы оценивать проекты, вам нужно войти на сайт
Другие проекты
Все проекты
Коттедж 200 м2
КМ
Дом с проф. бруса г. Челябинск
FREELANCE.RU
Toggle navigation
Нанять фрилансера
Заказчику
Найти по специализации
Найти по услугам
Провести конкурс
Разместить задание
Виртуальный HR
Найти студию
Другое
Найти работу
Фрилансеру
Найти задание
Присоединиться к команде
Участвовать в конкурсе
Предложить услугу
Другое
Возможности
Для заказчика
Для фрилансера
Вход
Разместить задание
▲