Я не разделяю архитектуру и дизайн, для меня это единое целое

Буевич Максим maksekost80

Рейтинг: 128
не верифицирован
Всего отзывов: 3 0
Выполнил заданий: 3
  • Работ в портфолио: 23
  • Типовых услуг: 0
  • Работ на продажу: 3
  • Возраст: 45 лет
  • Зарегистрирован: 07.07.2019
Был на сайте:

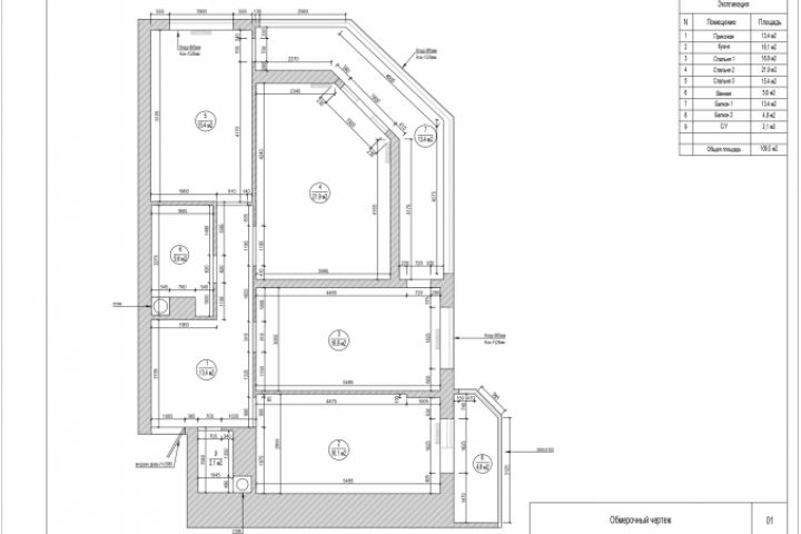
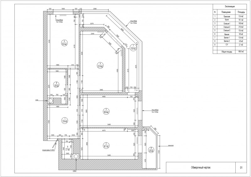
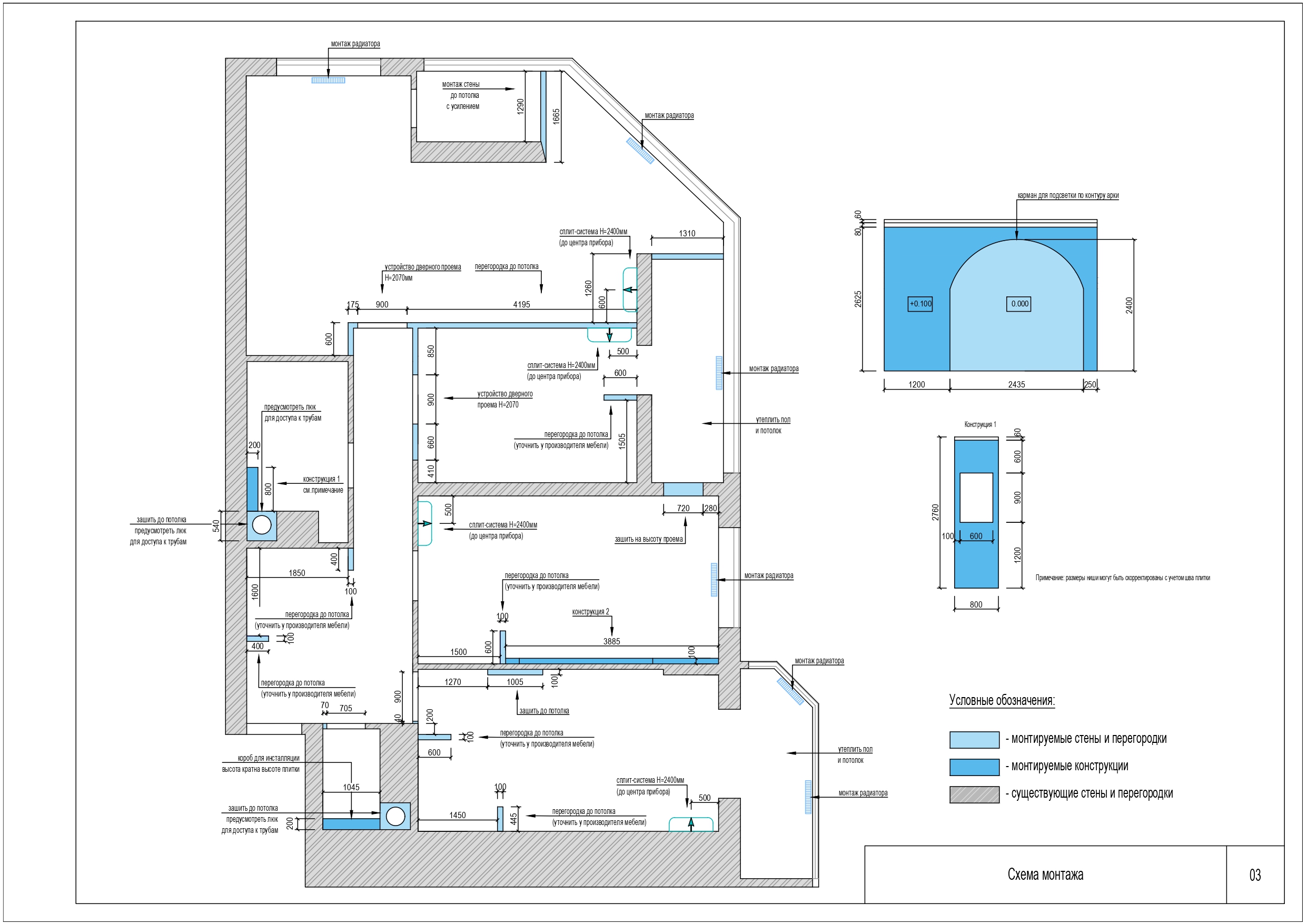
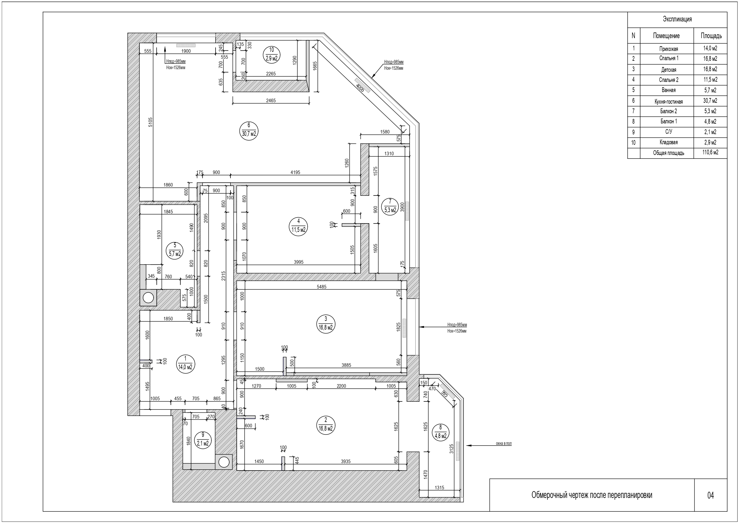
Рабочие чертежи дизайн проекта

Используемые навыки:

Описание

В составе дизайн проекта квартиры, в программе AutoCAD были выполнены отдельные чертежи (обмерочный чертеж, схема демонтажа, схема монтажа и другие)

Презентация проекта

pic4207744.jpg
1- 18 лист дизайн интерьера_page-0002.jpg
1- 18 лист дизайн интерьера_page-0003.jpg
1- 18 лист дизайн интерьера_page-0004.jpg

Оценили проект:

0