Я не разделяю архитектуру и дизайн, для меня это единое целое

Буевич Максим maksekost80

Рейтинг: 128
не верифицирован
Всего отзывов: 3 0
Выполнил заданий: 3
  • Работ в портфолио: 23
  • Типовых услуг: 0
  • Работ на продажу: 3
Был на сайте:

Эскизный дизайн проект дома

Используемые навыки:

Описание

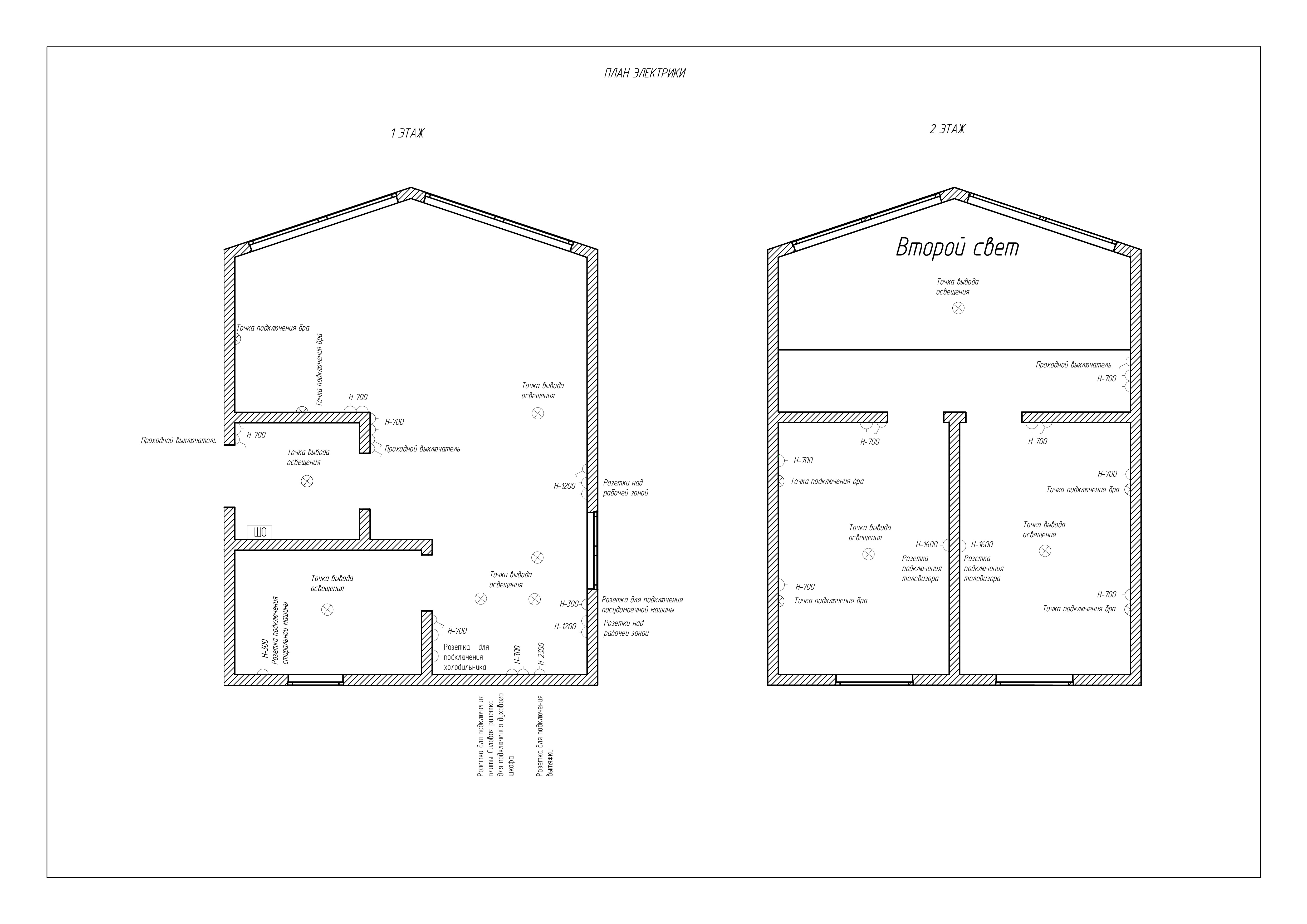
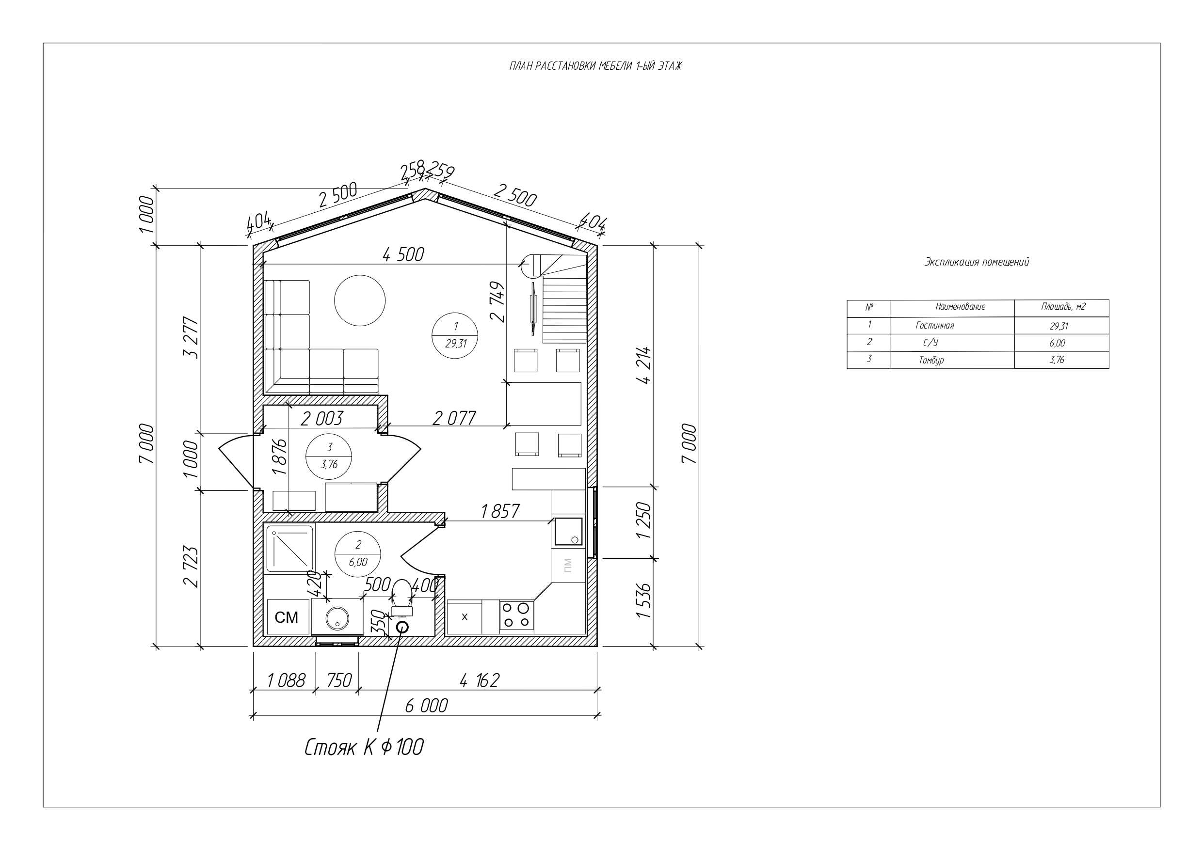
Для строящегося дома расположенного на горнолыжном курорте требовалось разработать простой и минималистичный дизайн интерьера. Главными условиями при его разработке были: недорогой ремонт, побольше дерева в дизайне. В связи с этим было предложено:1.) отделку стен выполнить из имитации бруса в покраской в светло-серый цвет, 2) в качестве напольного покрытия предлогается использовать инженерную доску с окраской в серо-пепельно-черный цвет, 3)в с/у и тамбуре в качестве напольного покрытия используется светлый керамогранит.

Презентация проекта

pic4218989.jpg
Лист 1_page-0001.jpg
Лист 2.jpg
Лист 3.jpg
Лист 4.jpg
Лист 5.jpg
Лист 6.jpg
Лист 7.jpg
Лист 8.jpg
Лист 9.jpg

Оценили проект:

0