Ценность всегда должна превышать цену.

Евгения Елисеева jennifereliseeva

Рейтинг: 75
Паспорт верифицирован
Всего отзывов: 0
  • Работ в портфолио: 5
  • Типовых услуг: 0
  • Работ на продажу: 0
Была на сайте:

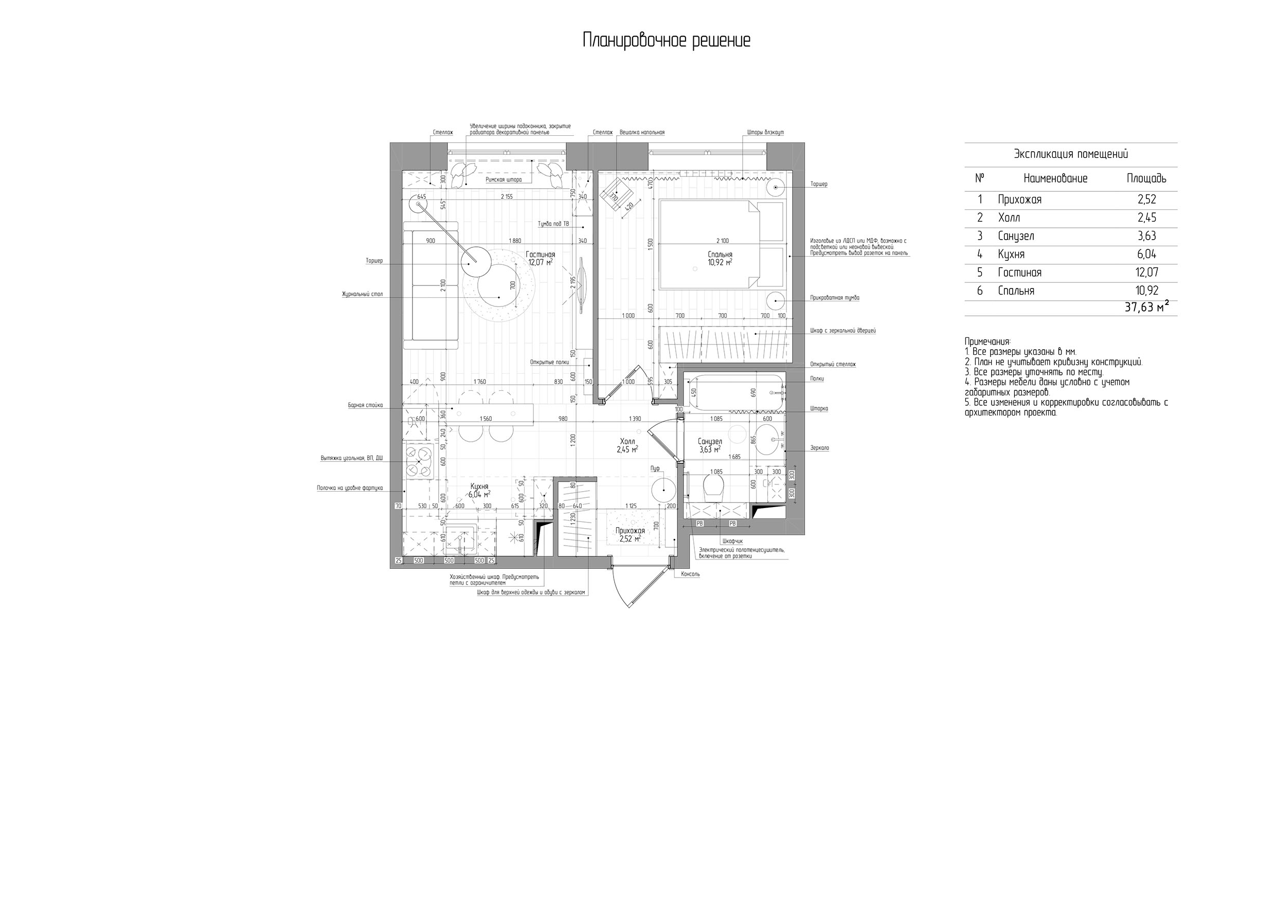
Планировочное решение

Используемые навыки:

Описание

Разработка вариантов планировочного решения однокомнатной квартиры.

Презентация проекта

pic4513875.jpg
1-комнатная кв Мытищи замер и планировки-2.jpg
1-комнатная кв Мытищи замер и планировки-3.jpg
1-комнатная кв Мытищи замер и планировки-4.jpg
1-комнатная кв Мытищи замер и планировки-5.jpg

Оценили проект:

0