Воплощаю мечты - в реальность!

Виктория Говорина sweetdesigner

Рейтинг: 108
Паспорт верифицирован
Всего отзывов: 1 0
  • Работ в портфолио: 28
  • Типовых услуг: 1
  • Работ на продажу: 0
  • Возраст: 25 лет
  • Зарегистрирован: 03.07.2021
Была на сайте:

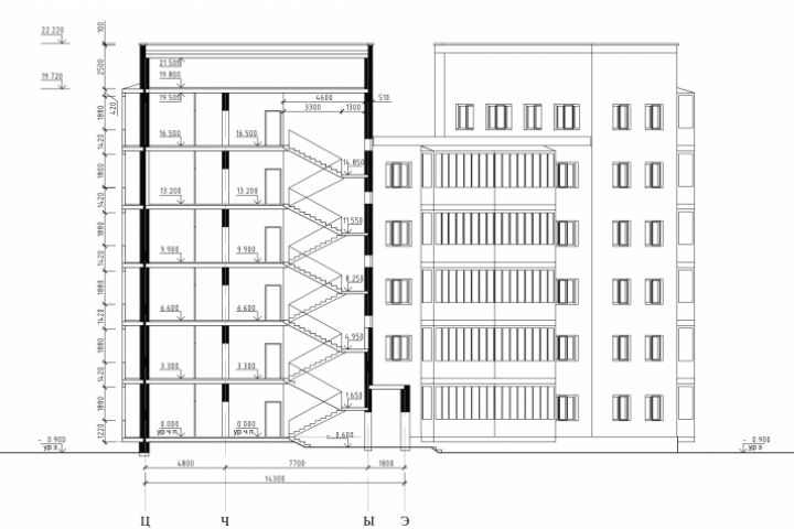
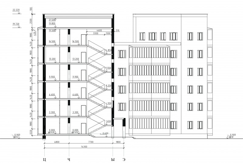
Разрез жилого дома

Используемые навыки:

Описание

Разрез жилого дома средней этажности. Ур.чп 0.000 Ур.з -0,900

Презентация проекта

pic4158133.jpg

Оценили проект:

0