расчет и конструирование

Надежда Тарантина gat_taga

Рейтинг: 94
не верифицирован
Всего отзывов: 0
  • Работ в портфолио: 34
  • Типовых услуг: 0
  • Работ на продажу: 0
Была на сайте:

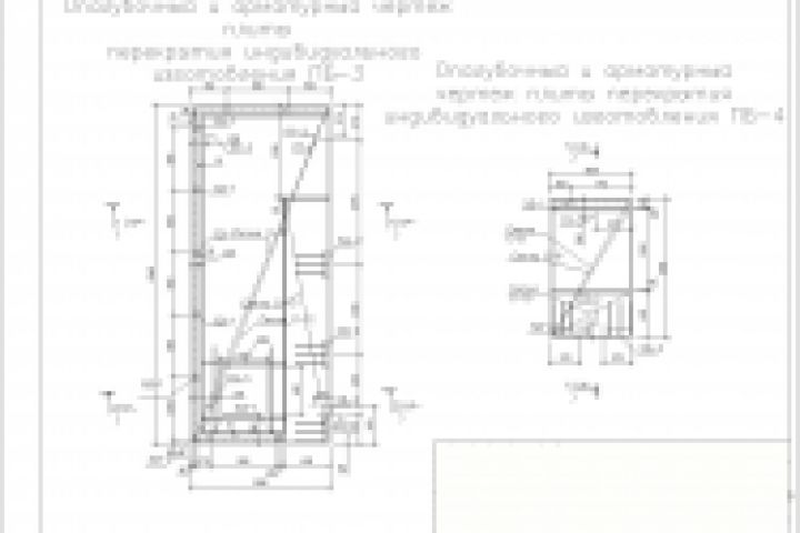
Плита перекрытия

Используемые навыки:

Описание

Расчет и конструирование плиты перекрытия индивидуального изготовления

Презентация проекта

pic2447942.jpg

Оценили проект:

0