Top 10
Рейтинг: 3 312
Верифицирован через Сбер ID
Всего отзывов: 59 0
Профессионализм: 10 Коммуникация: 10
Выполнил заданий: 52
  • Работ в портфолио: 380
  • Типовых услуг: 0
  • Работ на продажу: 0
  • Возраст: 40 лет
  • Стаж работы: 15 лет
  • Зарегистрирован: 24.09.2015
  • Юридический статус:ИП
  • Стоимость услуг (руб): 5 000 за час
Был на сайте:

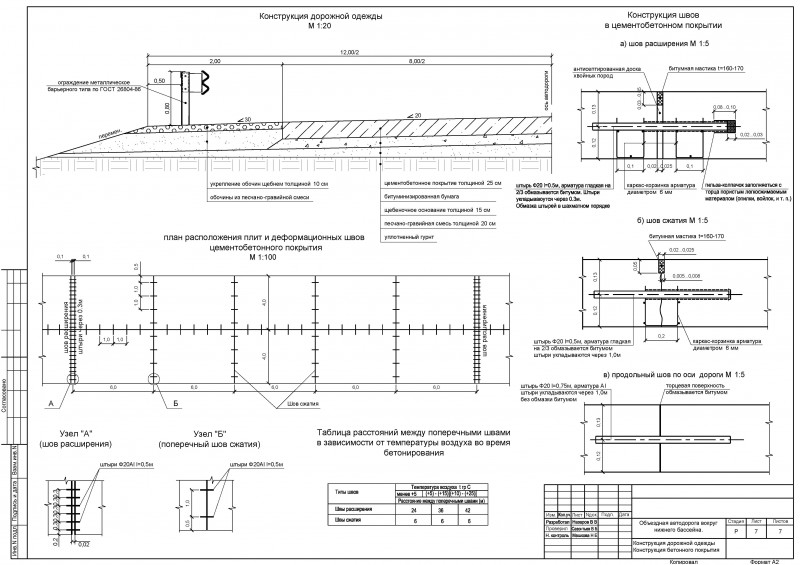
Конструкция бетонного покрытия дорожной одежды

Используемые навыки:

Описание

Конструкция бетонного покрытия дорожной одежды

Презентация проекта

pic2503521.jpg

Оценили проект:

0