Рейтинг: 109
Паспорт верифицирован
Всего отзывов: 0
  • Работ в портфолио: 49
  • Типовых услуг: 3
  • Работ на продажу: 0
  • Зарегистрирован: 13.02.2024
Был на сайте:

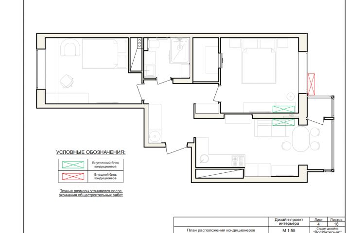
Технический дизайн квартиры 52 кв.м.

Используемые навыки:

Описание

Технический дизайн проект квартиры площадью 52 квадратных метра включает в себя разработку планировочного решения с расстановкой мебели, сантехники и оборудования, планы монтажа стен, полов и потолков, схемы электрики, сантехники, отопления и вентиляции, раскладки покрытий, развертки и разрезы, ведомости и спецификации, а также расчет количества отделочных материалов. Подойдет для Вас, если Вам нужен ремонт без визуализации - т.е., если у Вас есть четкое представление стиля, цвета и композиции будущего интерьера.

Ссылки на примеры реализации

 www.behance.net/gallery/190648957/tehnicheskij-diz...

Презентация проекта

pic4571970.jpg

Оценили проект:

0