Рейтинг: 2 734
не верифицирован
Всего отзывов: 16 1
Выполнил заданий: 25
  • Работ в портфолио: 141
  • Типовых услуг: 0
  • Работ на продажу: 0
Был на сайте:

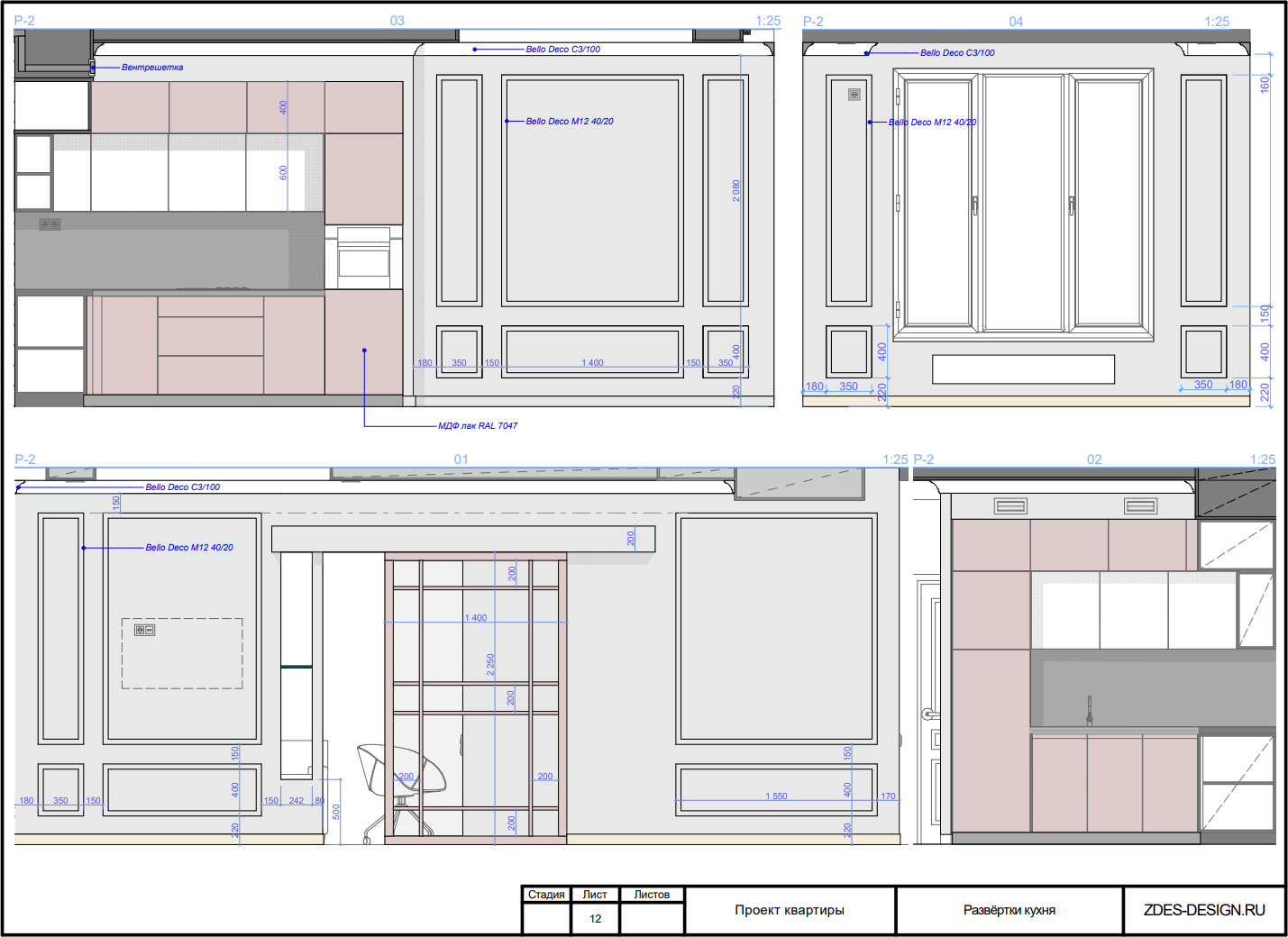
Фрагменты рабочего проекта интерьера кватиры

Используемые навыки:

Описание

Пример рабочего проекта https://zdes-design.ru/wp-content/uploads/H_rp-n3.jpg
Полный проект https://zdes-design.ru/n3/

Презентация проекта

pic4414531.jpg
p4.jpg
p06.jpg
p07.jpg
p08.jpg
p12.jpg
p19.jpg

Оценили проект:

0