Всегда готов...

Денис Булутов hammel1256

Рейтинг: 65
не верифицирован
Всего отзывов: 0
  • Работ в портфолио: 5
  • Типовых услуг: 0
  • Работ на продажу: 0
Был на сайте:

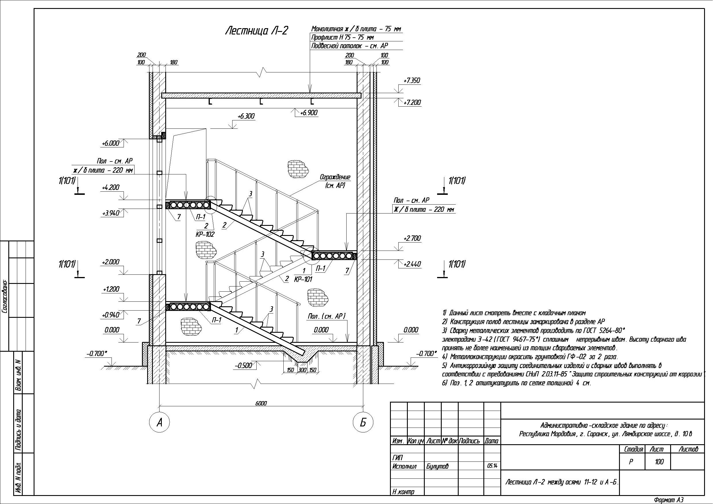
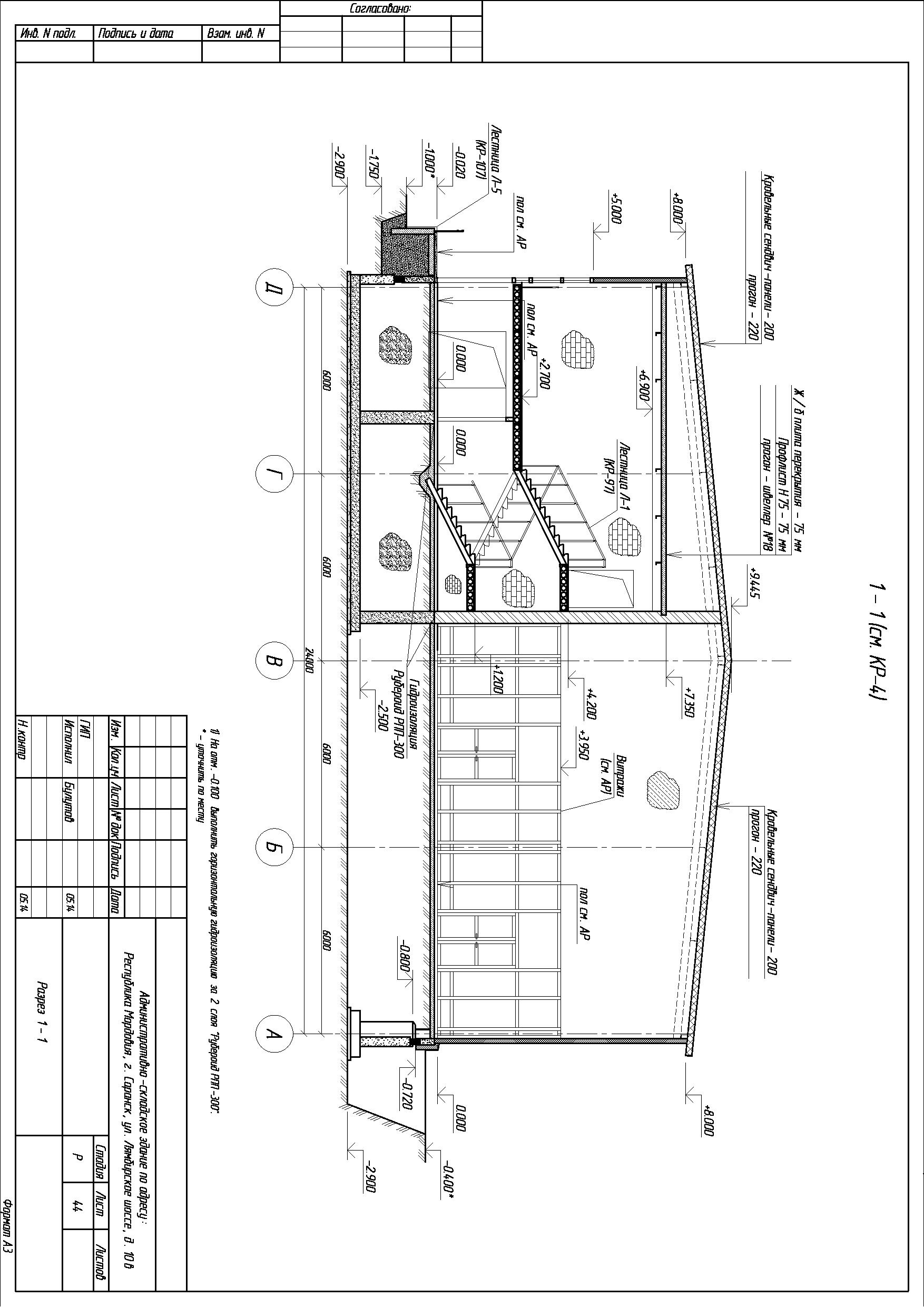
Административно-складское здание г.Саранск

Используемые навыки:

Описание

Выполнена работа по разработке разделов КЖ, КР, КМ с прохождением экспертизы
Проект реализован.

Презентация проекта

pic3165485.jpg
2.jpg
3.jpg

Оценили проект:

0