Проект всегда довожу до конца

Александр Вялков volkov1102

Рейтинг: 76
не верифицирован
Всего отзывов: 0
  • Работ в портфолио: 6
  • Типовых услуг: 0
  • Работ на продажу: 0
Был на сайте:

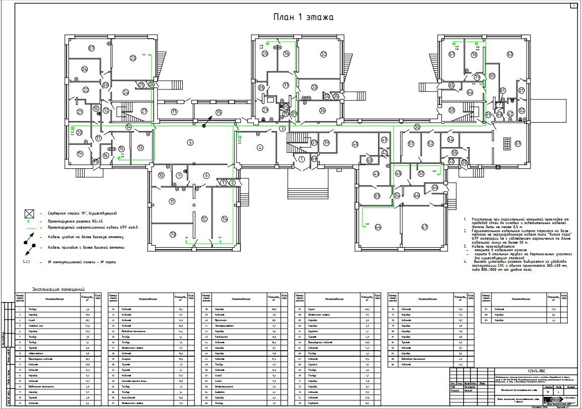
Проект ЛВС диспансера схема

Используемые навыки:

Описание

«Модернизация локально-вычислительных сетей и сетевого оборудования в здании литер А ВФ ГБУ РО ПНД Психоневрологический диспансер, расположенный по адресу: ул. М.Горького, д. 161а, г. Волгодонск, Ростовская область.

Презентация проекта

pic3977689.jpg
Слаботочка 2.png

Оценили проект:

0