Архитектурные чертежи
Для полной функциональности этого сайта необходимо включить JavaScript.
Ростов-на-Дону
Полина Самойлова
isoldy
Рейтинг: 116
не верифицирован
Всего отзывов:
1
0
Выполнено заданий:
1
Работ в портфолио:
81
Типовых услуг:
0
Работ на продажу:
0
Зарегистрирован:
02.10.2017
Был на сайте:
2024-06-02 в 02:32
inbox
Предложить работу
Добавить в избранное
Добавить рекомендацию
Пожаловаться
Дизайн пространства
20
0
Архитектурные чертежи
Используемые навыки:
Архитектурное проектирование
Описание
Решение
Результат
Соавторы
Презентация проекта
Примеры реализации
Описание
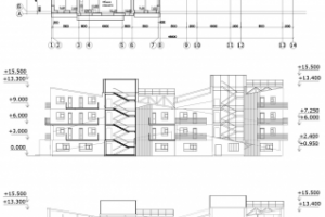
Планы, разрезы, фасады архитектуры
Презентация проекта
Оценили проект:
0
×
Оценили проект
×
Авторизация
Для того чтобы оценивать проекты, вам нужно войти на сайт
Другие проекты
Все проекты
Работа 3257069
Архитектурная визуализация
Разработка лого
FREELANCE.RU
Toggle navigation
Нанять фрилансера
Заказчику
Найти по специализации
Найти по услугам
Провести конкурс
Разместить задание
Виртуальный HR
Найти студию
Другое
Найти работу
Фрилансеру
Найти задание
Присоединиться к команде
Участвовать в конкурсе
Предложить услугу
Другое
Возможности
Для заказчика
Для фрилансера
Вход
Разместить задание
▲