Проектирование, визуализации

Константин Ражев razhevk

Рейтинг: 103
не верифицирован
Всего отзывов: 1 0
Выполнил заданий: 1
  • Работ в портфолио: 28
  • Типовых услуг: 0
  • Работ на продажу: 0
  • Возраст: 37 лет
  • Зарегистрирован: 14.06.2018
Был на сайте:

Экстерьерное оформление дома

Используемые навыки:

Описание

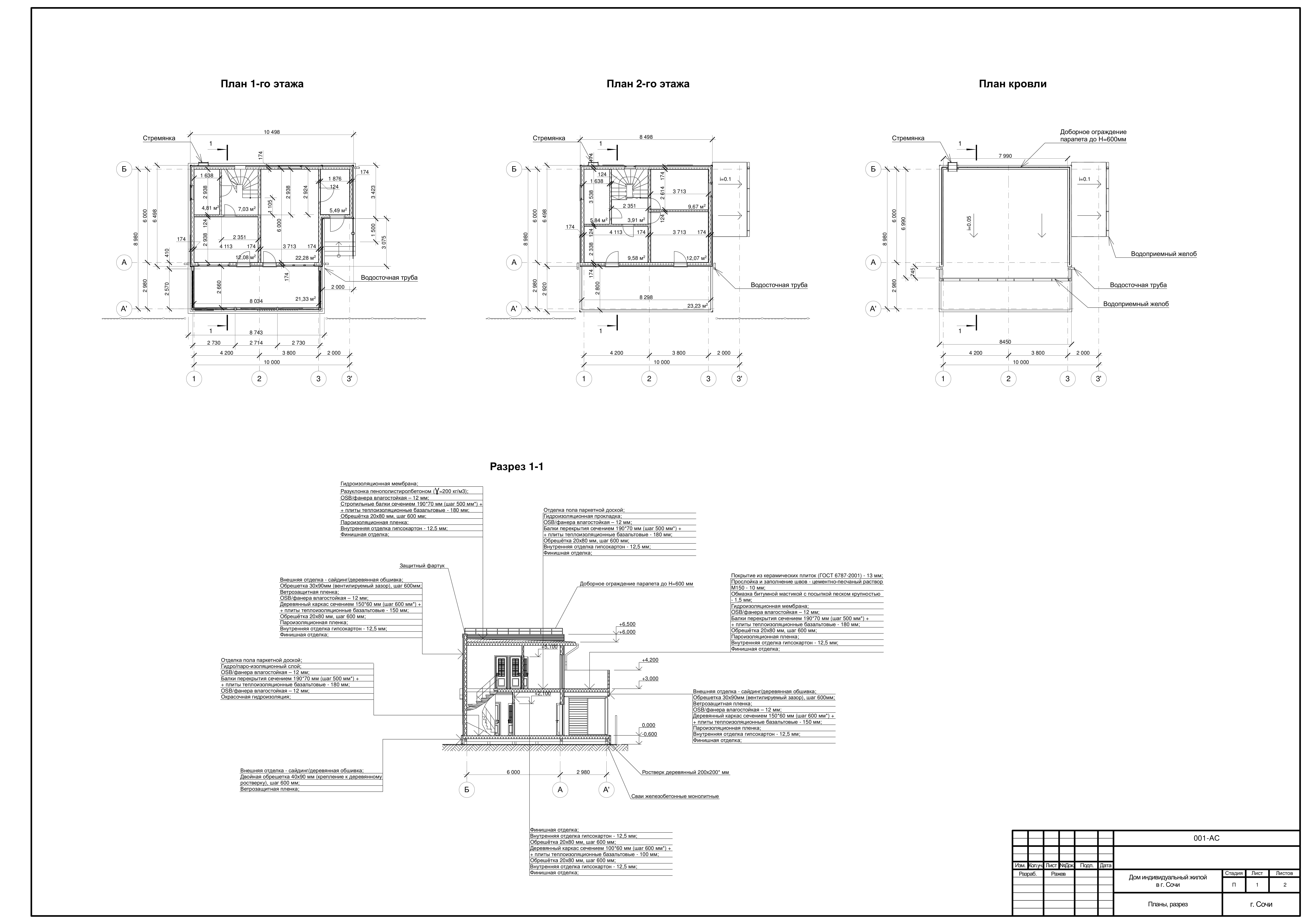
Задача состояла в поиске концепции оформления фасадов уже построенного загородного дома. Заказчик предоставил планировки и размерные признаки по дому. Было решено остановиться на оформлении дома сайдингом совместно с вагонкой.

Презентация проекта

pic4088964.jpg
ACCamera_1.jpg
ACCamera_3.jpg
ACCamera_4.jpg
ACCamera_6.jpg
ACCamera_7.jpg
Планы, разрез (г.Сочи).jpg
планировка 1-й этаж.png
планировка второй этаж.png

Оценили проект:

0