Рейтинг: 54
не верифицирован
Всего отзывов: 0
  • Работ в портфолио: 4
  • Типовых услуг: 0
  • Работ на продажу: 0
Был на сайте:

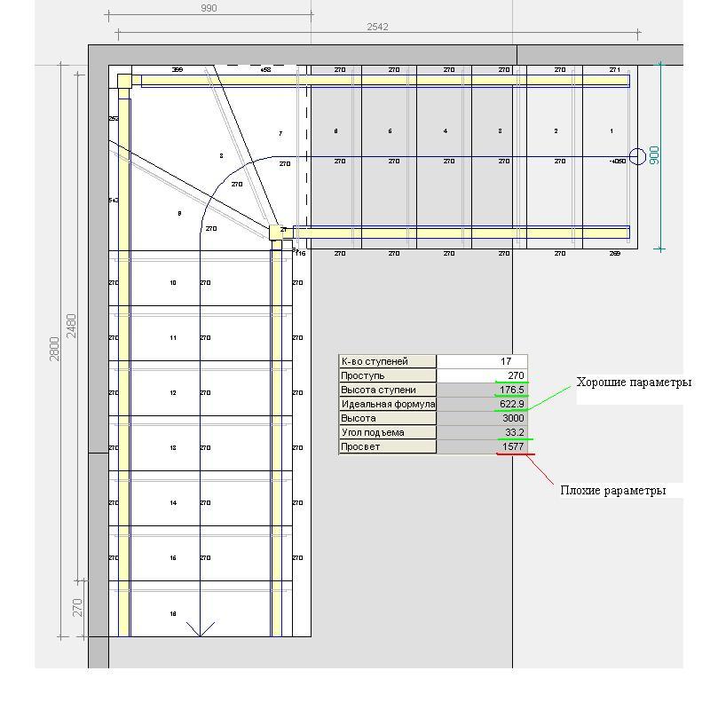
Пример проекта с подетальными чертежами всех элементов лестницы.

Используемые навыки:

Описание

Индивидуальное проектирование лестниц. Создание безопасной и максимально комфортной линии движения. 3D моделирование и визуализация, по детальные чертежи всех элементов.
http://dom.dacha-dom.ru/lestnica.html

Презентация проекта

pic795343.jpg

Оценили проект:

0