Идея - основа всего

Борис Хван boris_hvan

Рейтинг: 70
не верифицирован
Всего отзывов: 0
  • Работ в портфолио: 10
  • Типовых услуг: 0
  • Работ на продажу: 0
  • Зарегистрирован: 12.10.2012
Был на сайте:

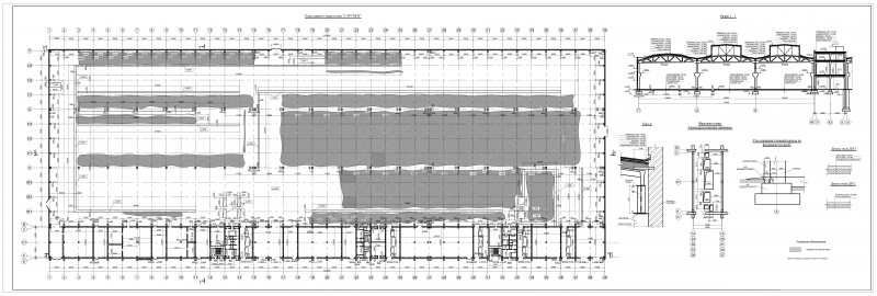
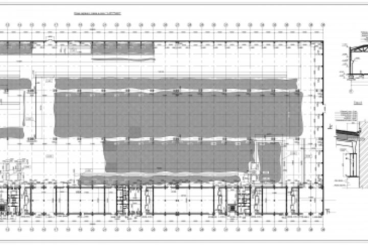
Обмерный чертеж производственного здания

Описание

Обмерный чертёж производственного здания с нанесением выявленных дефектов и повреждений конструкций в рамках технического обследования

Презентация проекта

pic3955712.jpg

Оценили проект:

0