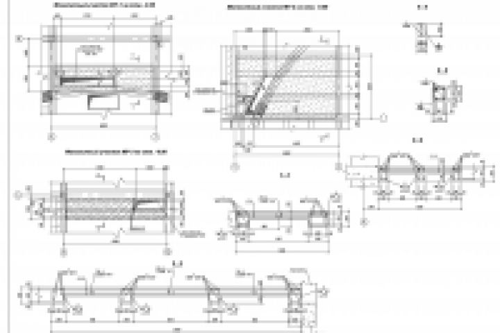
Монолитные участки (раздел КЖ)
Для полной функциональности этого сайта необходимо включить JavaScript.
Волгоград
Идея - основа всего
Борис Хван
boris_hvan
Рейтинг: 70
не верифицирован
Всего отзывов:
0
Работ в портфолио:
10
Типовых услуг:
0
Работ на продажу:
0
Зарегистрирован:
12.10.2012
Был на сайте:
2024-06-27 в 18:37
inbox
Вконтакте
Предложить работу
Добавить в избранное
Добавить рекомендацию
Пожаловаться
Инженерия
51
0
Монолитные участки (раздел КЖ)
Используемые навыки:
Проектирование объектов
Описание
Решение
Результат
Соавторы
Презентация проекта
Примеры реализации
Описание
Лист из проекта монолитных участков.
Презентация проекта
Оценили проект:
0
×
Оценили проект
×
Авторизация
Для того чтобы оценивать проекты, вам нужно войти на сайт
Другие проекты
Все проекты
Обмерный чертеж производственного здания
Схема фундаментов (раздел КЖ)
Металлическая ферма (раздел КМД)
FREELANCE.RU
Toggle navigation
Нанять фрилансера
Заказчику
Каталог фрилансеров
Каталог PRO
Каталог студий
Каталог услуг
Каталог работ
Виртуальный HR
Умный поиск
Провести конкурс
Разместить задание
Найти работу
Найти задание
Присоединиться к команде
Участвовать в конкурсе
Предложить услугу
Вход
Разместить задание
▲