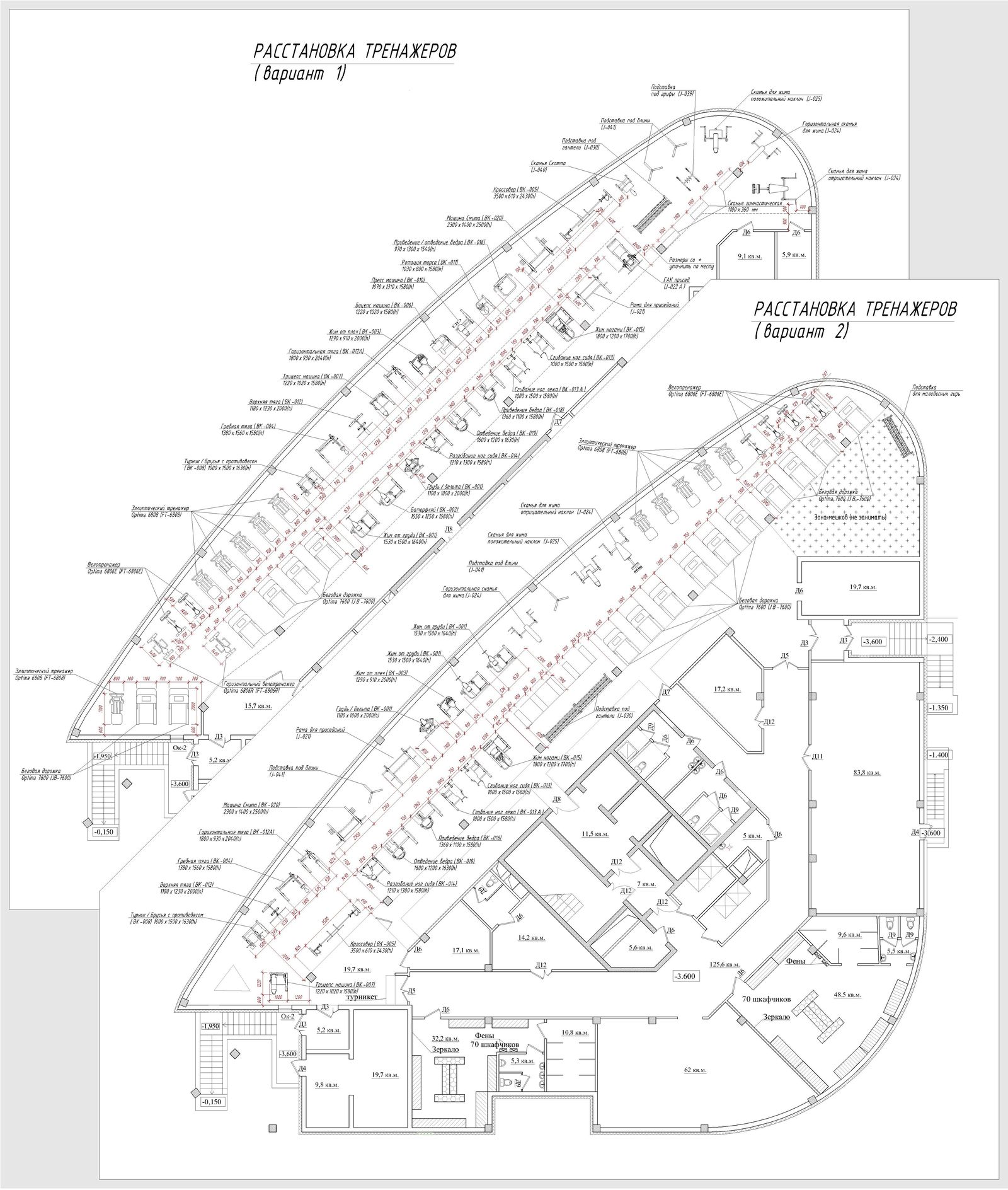
Расстановка тренажеров
Для полной функциональности этого сайта необходимо включить JavaScript.
Гомель
Я ЕСТЬ....
Роман Максименко
maxrom
Рейтинг: 237
не верифицирован
Всего отзывов:
13
0
Выполнил заданий:
9
Активность:
Работ в портфолио:
62
Типовых услуг:
1
Работ на продажу:
0
Возраст:
45 лет
Зарегистрирован:
14.06.2012
Был на сайте:
2024-07-01 в 09:19
inbox
telegram
whatsapp
ro_m_an@mail.ru
Вконтакте
Предложить работу
Добавить в избранное
Добавить рекомендацию
Пожаловаться
Дизайн пространства
41
0
Расстановка тренажеров
Используемые навыки:
Дизайн интерьеров
Описание
Решение
Результат
Соавторы
Презентация проекта
Примеры реализации
Описание
Презентация проекта
Оценили проект:
0
×
Оценили проект
×
Авторизация
Для того чтобы оценивать проекты, вам нужно войти на сайт
Другие проекты
Все проекты
Варианты крыши общественного здания
Эскизный проект дома по пожеланиям заказчика
Архитектурный проект жилого дома
FREELANCE.RU
Toggle navigation
Нанять фрилансера
Заказчику
Найти по специализации
Найти по услугам
Провести конкурс
Разместить задание
Виртуальный HR
Найти студию
Другое
Найти работу
Фрилансеру
Найти задание
Присоединиться к команде
Участвовать в конкурсе
Предложить услугу
Другое
Возможности
Для заказчика
Для фрилансера
Вход
Разместить задание
▲