Рейтинг: 237
не верифицирован
Всего отзывов: 13 0
Выполнил заданий: 9
  • Активность:
  • Работ в портфолио: 62
  • Типовых услуг: 1
  • Работ на продажу: 0
  • Возраст: 45 лет
  • Зарегистрирован: 14.06.2012
Был на сайте:

Проект планировки/перепланировки 120р/м2 maxrommm@gmail.com

Используемые навыки:

Описание

Приветствую!
Выполняю удаленно проекты планировки/перепланировки с расстановкой мебели по Вашим обмерам.
Стоимость - от 150 р. за м2, срок 5-10 дней.
Стоимость может быть ниже при обосновании - меньший набор чертежей нужен, предоставляете обмерный чертеж в dwg, площадь > 100м2, выслушаю ваш вариант.
Состав проекта (ниже прикреплен файл pdf):
0. Титульный лист.
1. Содержание проекта.
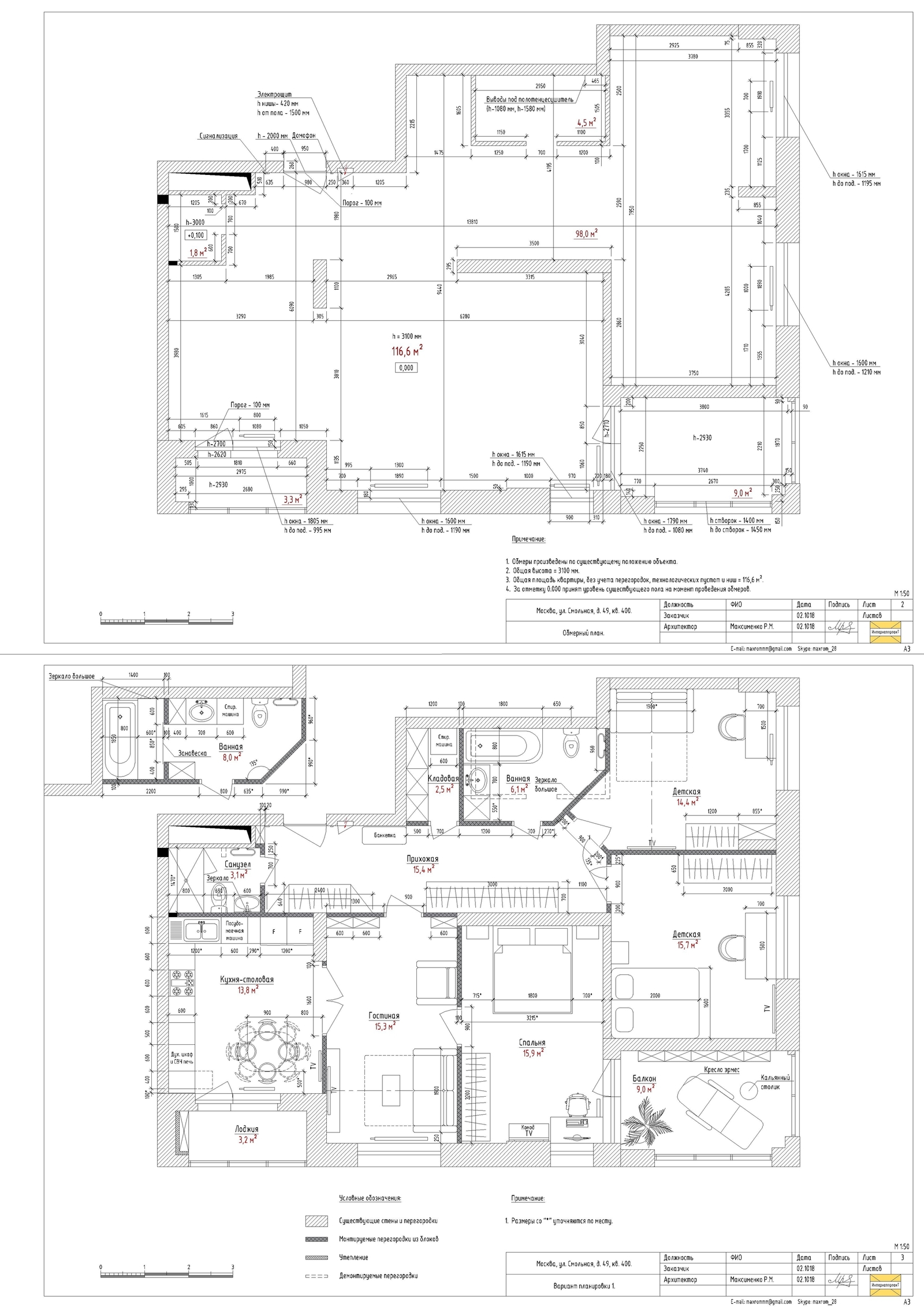
2. Обмерный план.
3. Вариант планировки 1.
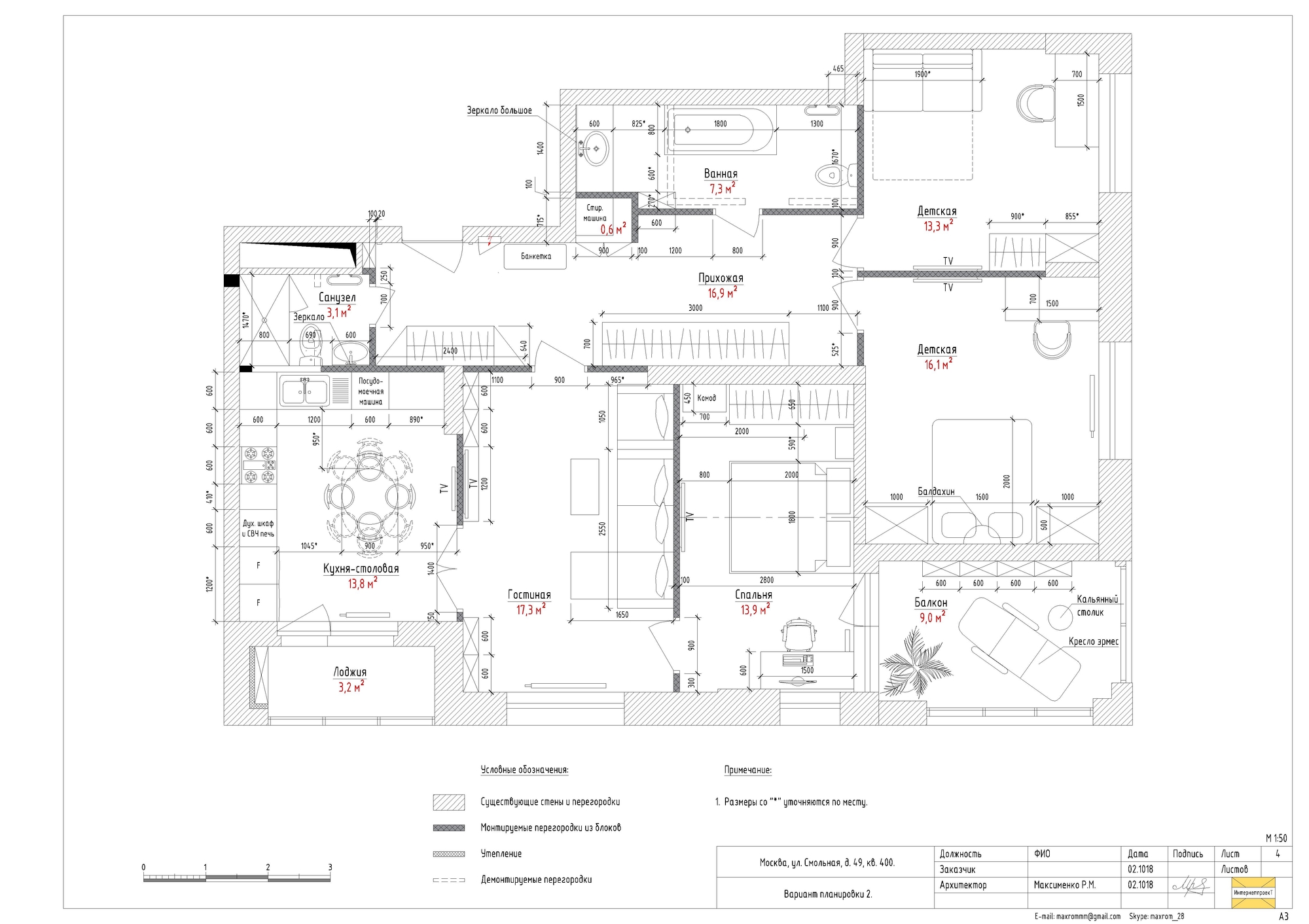
4. Вариант планировки 2.
5. Вариант планировки 3.
6. Итоговый вариант планировки.
7. План демонтажа перегородок.
8. План монтажа перегородок.
9. План расстановки мебели и оборудования с размерами.
10. План после перепланировки.
Предлагаемая структура сотрудничества(если у Вас есть предложения - я открыт к диалогу):
Мы ~ Встречаемся на просторах интернета. Обсуждаем нюансы(стоимость, состав проекта, срок)
Вы ~ Предоставляете обмеры или размеры необходимые, заполняете опросник или сообщаете пожелания в свободной форме, оплачиваете аванс 30-50%.
Я ~ Вычерчиваю обмерный план и 2-3 варианта планировки/перепланировки в соответствии с пожеланиями, нормами эргономики и практичности. Отсылаю Вам.
Вы ~ Выбираете понравившийся вариант планировки или фрагменты с разных вариантов, вносите уточнения/дополнения и сообщаете мне.
Я ~ Подготавливаю итоговый вариант планировки/перепланировки. Отсылаю Вам.
Вы ~ Согласовываете.
Я ~ Доделываю все остальные чертежи, формирую ввесь комплект.
Вы ~ Оплачиваете остаток.
Я ~ Присылаю Вам итог в формате pdf/jpg (это происходит практически одновременно с проплатой))
В итоге мы довольны результатоми от сотрудничества и радуемся жизни!)
Обращайтесь!)
e-mail: maxrommm@gmail.com Skype: maxrom_28 Viber/Теlegram/WhatsApp: +375293467110
Благодарю!)

Презентация проекта

pic3341366.jpg
Смольная_обмер.jpg
Смольная_вариант1.jpg
Смольная_вариант2.jpg
Смольная_вариант3.jpg
Смольная_вариант итоговый.jpg

Оценили проект:

0