Рейтинг: 65
не верифицирован
Всего отзывов: 0
  • Работ в портфолио: 15
  • Типовых услуг: 1
  • Работ на продажу: 0
Был на сайте:

Магазин косметики

Используемые навыки:

Описание

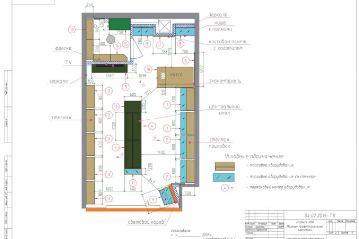
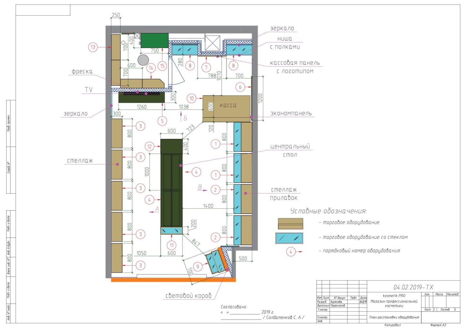
Схема расстановки оборудования магазина косметики. Раздел ТХ.

Презентация проекта

pic4315238.jpg

Оценили проект:

0