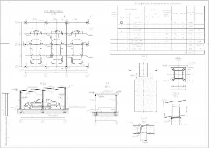
Проект автонавеса на 3 машины
Для полной функциональности этого сайта необходимо включить JavaScript.
Москва
На сайте с: 31.01.2014
Андрей Рандин
a.randin
Рейтинг: 73
не верифицирован
Всего отзывов:
0
Работ в портфолио:
13
Типовых услуг:
0
Работ на продажу:
0
Был на сайте:
2024-07-10 в 14:31
inbox
a.randin@bk.ru
Предложить работу
Добавить в избранное
Добавить рекомендацию
Пожаловаться
Инженерия
13
0
Проект автонавеса на 3 машины
Используемые навыки:
Чертежи/Схемы
Описание
Решение
Результат
Соавторы
Презентация проекта
Примеры реализации
Описание
Презентация проекта
Оценили проект:
0
×
Оценили проект
×
Авторизация
Для того чтобы оценивать проекты, вам нужно войти на сайт
Другие проекты
Все проекты
рамы под инженерное оборудование
металлическая ферма атриума
лестница металлическая
FREELANCE.RU
Toggle navigation
Нанять фрилансера
Заказчику
Найти по специализации
Найти по услугам
Провести конкурс
Разместить задание
Виртуальный HR
Другое
Найти работу
Фрилансеру
Найти задание
Присоединиться к команде
Участвовать в конкурсе
Другое
Возможности
Для заказчика
Для фрилансера
Вход
Разместить задание
▲