Обмер дома
Для полной функциональности этого сайта необходимо включить JavaScript.
Москва
29 лет
На сайте с: 24.11.2021
Роман Выгодин
roma887
Рейтинг: 71
не верифицирован
Всего отзывов:
0
Работ в портфолио:
11
Типовых услуг:
0
Работ на продажу:
0
Был на сайте:
2024-07-21 в 20:17
89938998155
inbox
roma.vygodin@mail.ru
Предложить работу
Добавить в избранное
Добавить рекомендацию
Пожаловаться
Инженерия
15
0
Обмер дома
Используемые навыки:
Чертежи/Схемы
Описание
Решение
Результат
Соавторы
Презентация проекта
Примеры реализации
Описание
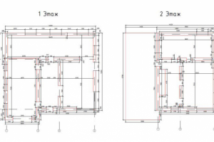
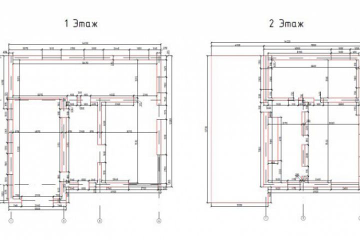
Обмерный план дома 240м2
Презентация проекта
Оценили проект:
0
×
Оценили проект
×
Авторизация
Для того чтобы оценивать проекты, вам нужно войти на сайт
Другие проекты
Все проекты
Проект в AutoCad
Мой первый проект Revit
Обмер жилого помещения
FREELANCE.RU
Toggle navigation
Нанять фрилансера
Заказчику
Найти по специализации
Найти по услугам
Провести конкурс
Разместить задание
Другое
Найти работу
Фрилансеру
Найти задание
Присоединиться к команде
Участвовать в конкурсе
Другое
Возможности
Для заказчика
Для фрилансера
Вход
Разместить задание
▲