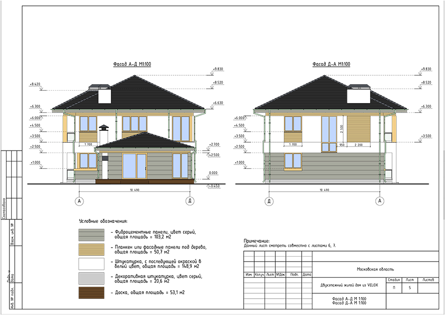
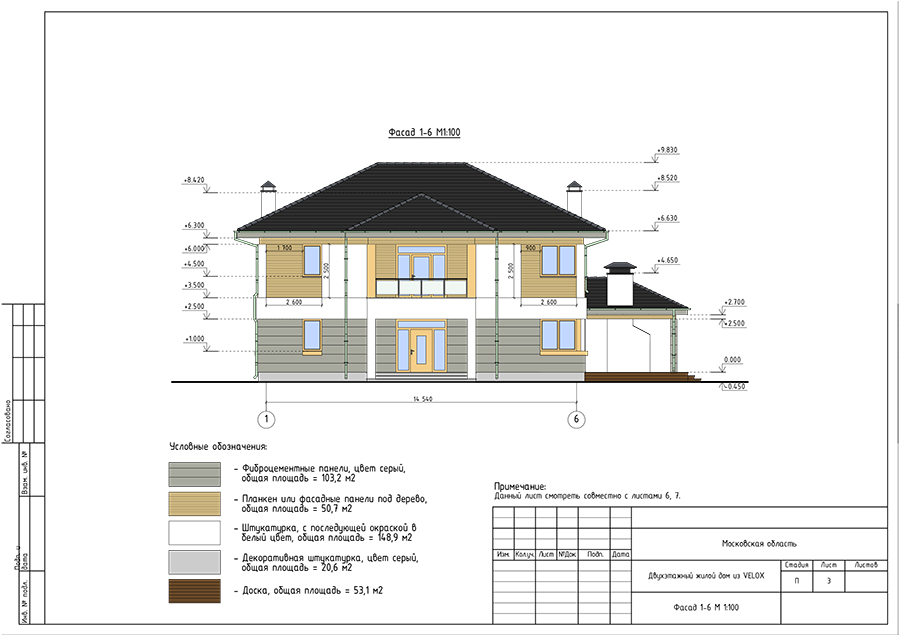
Решение по отделке фасадов
Для полной функциональности этого сайта необходимо включить JavaScript.
Москва
Все, что можно представить, можно осуществить
Анна Арх
Anna-Arh
Рейтинг: 670
не верифицирован
Всего отзывов:
30
1
Выполнила заданий:
20
Нейросаммари
Активность:
Работ в портфолио:
75
Типовых услуг:
0
Работ на продажу:
0
Возраст:
35 лет
Зарегистрирован:
26.02.2016
Была на сайте:
2025-12-14 в 16:06
inbox
rakuanna@mail.ru
Предложить работу
Добавить в избранное
Добавить рекомендацию
Пожаловаться
3D графика
55
0
Решение по отделке фасадов
Используемые навыки:
3D Визуализация
Описание
Решение
Результат
Соавторы
Презентация проекта
Примеры реализации
Описание
Презентация проекта
Оценили проект:
0
×
Оценили проект
×
Авторизация
Для того чтобы оценивать проекты, вам нужно войти на сайт
Другие проекты
Все проекты
Архитектурный проект индивидуального жилого дома
Развертка стен кухни-гостиной и прихожей
Архитектурный проект индивидуального жилого дома
FREELANCE.RU
Toggle navigation
Нанять фрилансера
Заказчику
Найти по специализации
Найти по услугам
Провести конкурс
Разместить задание
Виртуальный HR
Другое
Найти работу
Фрилансеру
Найти задание
Присоединиться к команде
Участвовать в конкурсе
Предложить услугу
Другое
Возможности
Для заказчика
Для фрилансера
Вход
Разместить задание
▲