Перепланировка помещений нежилого здания - гостиницы
Для полной функциональности этого сайта необходимо включить JavaScript.
Самара
Анастасия Кузнецова
anastasins
Рейтинг: 70
не верифицирован
Всего отзывов:
0
Работ в портфолио:
10
Типовых услуг:
0
Работ на продажу:
0
Зарегистрирован:
08.11.2022
Была на сайте:
2024-07-24 в 12:10
inbox
Предложить работу
Добавить в избранное
Добавить рекомендацию
Пожаловаться
Инженерия
17
0
Перепланировка помещений нежилого здания - гостиницы
Используемые навыки:
Водоснабжение и водоотведение
Описание
Решение
Результат
Соавторы
Презентация проекта
Примеры реализации
Описание
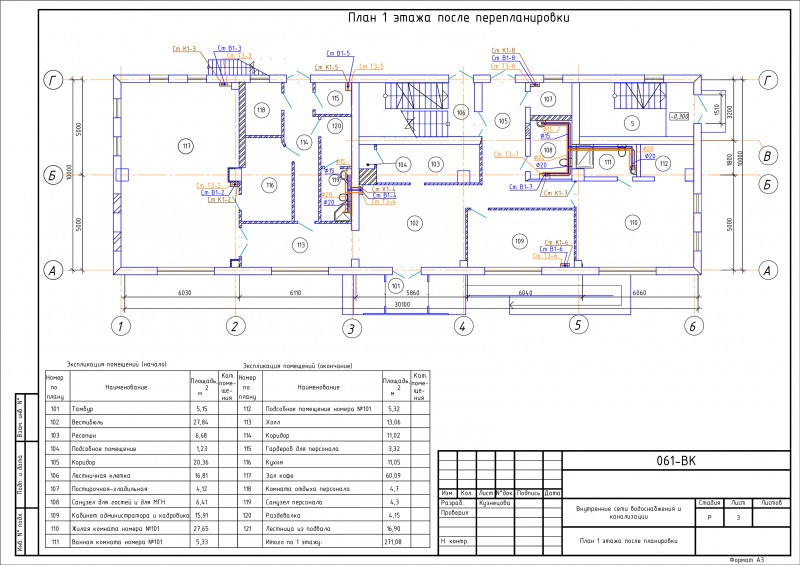
План 1 этажа
Презентация проекта
Оценили проект:
0
×
Оценили проект
×
Авторизация
Для того чтобы оценивать проекты, вам нужно войти на сайт
Другие проекты
Все проекты
Перепланировка помещений нежилого здания - гостиницы
Капитальный ремонт кольцевой водопроводной линии
Капитальный ремонт кольцевой водопроводной линии
FREELANCE.RU
Toggle navigation
Нанять фрилансера
Заказчику
Каталог фрилансеров
Каталог PRO
Каталог студий
Каталог услуг
Каталог работ
Виртуальный HR
Умный поиск
Провести конкурс
Разместить задание
Найти работу
Найти задание
Присоединиться к команде
Участвовать в конкурсе
Предложить услугу
Вход
Разместить задание
▲