Рейтинг: 71
Паспорт верифицирован
Всего отзывов: 1 0
Выполнила заданий: 1
  • Работ в портфолио: 16
  • Типовых услуг: 0
  • Работ на продажу: 0
  • Зарегистрирован: 13.09.2021
Была на сайте:

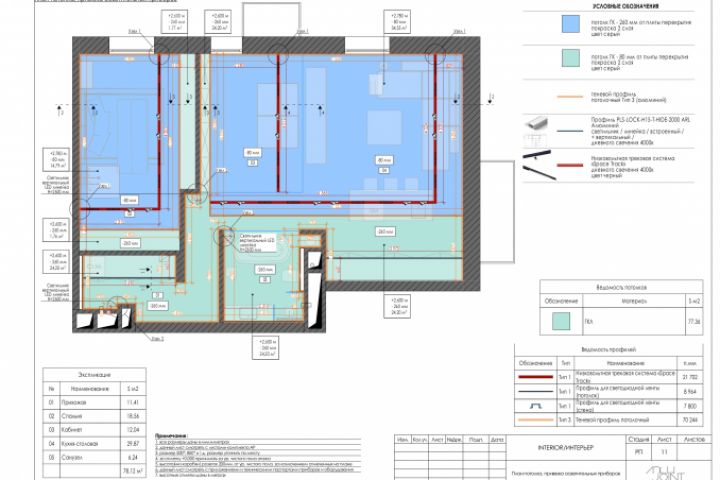
План потолков и привязка осветилеьных приборов

Используемые навыки:

Описание

На плане отображены материалы потолочных покрытий, уровень опуска потолка, места расположения потолочных карнизов, места расположения осветительных приборов и маркеры сечений (1-1, 2-2, 3-3 4-4), которые детально вычерчены на дополнительных листа.
Так же добавлена ведомость с просчетом необходимой площади всех типов потолочных покрытий, длины профилей для трековых светильников и потолочного теневого профиля.

Презентация проекта

pic4368426.jpg

Оценили проект:

0