Рейтинг: 71
Паспорт верифицирован
Всего отзывов: 1 0
Выполнила заданий: 1
  • Работ в портфолио: 16
  • Типовых услуг: 0
  • Работ на продажу: 0
Была на сайте:

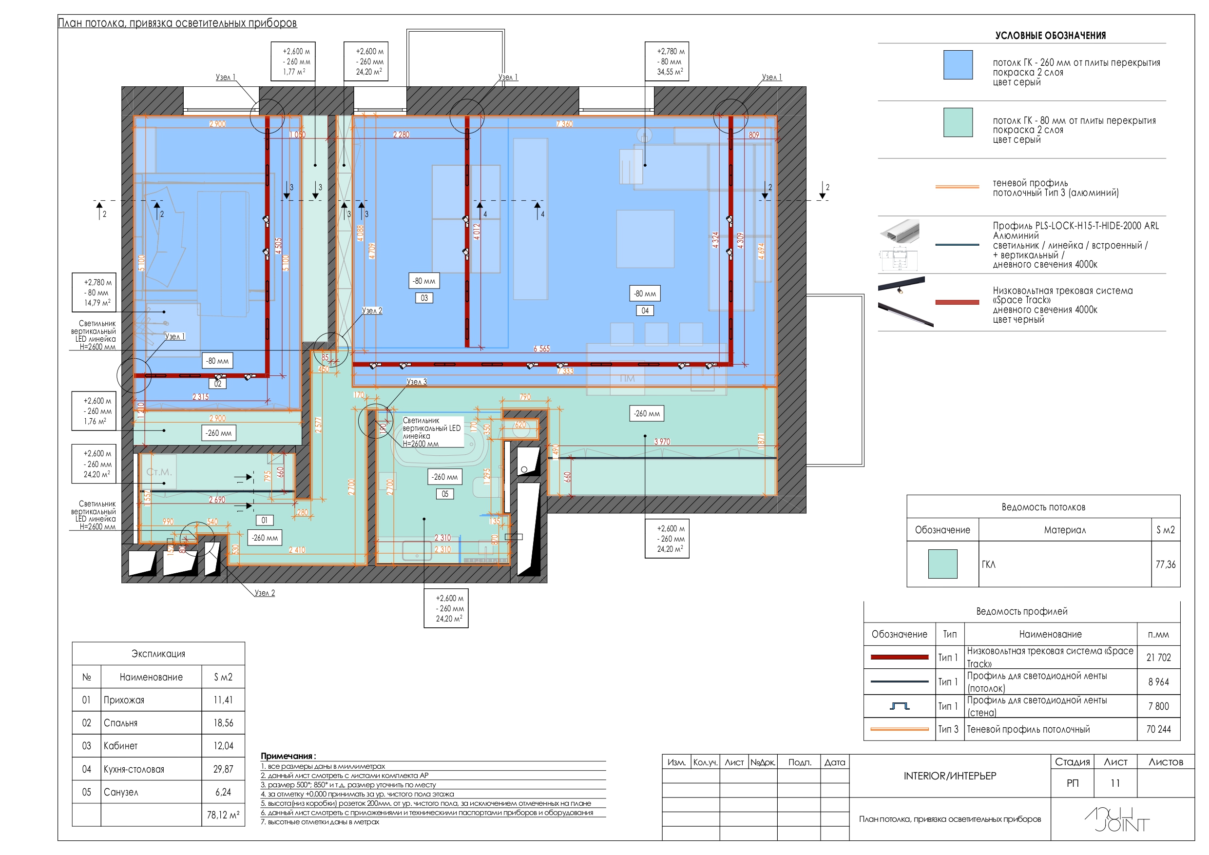
Узлы по стенам и потолку

Используемые навыки:

Описание

На схеме отображены узлы:
Узел 1-1: стык шинопровода для трекового светильника с теневым профилем потолочным.
Узел 2-2: использование встроенного профиля для светодиодной ленты вертикально в стене с отделкой покраски.
Узел 3-3: использование встроенного профиля для светодиодной ленты вертикально в стене с отделкой керамогранит.

Смотреть совместно с планом потолочных покрытий.

Презентация проекта

pic4368492.jpg
11_План потолка, привязка осветительных приборов_pages-to-jpg-00

Оценили проект:

0