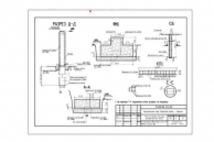
Реконструкция магазина автозапчастей (пристройка)
Для полной функциональности этого сайта необходимо включить JavaScript.
Кодинск
Могу работать на отлично..., но за деньги!
Владимир Поляков
Zavxoz1977
Рейтинг: 138
не верифицирован
Всего отзывов:
2
0
Выполнил заданий:
3
Активность:
Работ в портфолио:
28
Типовых услуг:
0
Работ на продажу:
0
Зарегистрирован:
04.06.2015
Был на сайте:
2024-08-05 в 20:06
inbox
whatsapp
polvov@mail.ru
Предложить работу
Добавить в избранное
Добавить рекомендацию
Пожаловаться
Инженерия
61
0
Реконструкция магазина автозапчастей (пристройка)
Используемые навыки:
Проектирование объектов
Описание
Решение
Результат
Соавторы
Презентация проекта
Примеры реализации
Описание
Презентация проекта
Оценили проект:
0
×
Оценили проект
×
Авторизация
Для того чтобы оценивать проекты, вам нужно войти на сайт
Другие проекты
Все проекты
Реконструкция магазина автозапчастей (пристройка)
Гаражные боксы на 4 грузовых автомобиля. Фасад 2.
Коттедж из проф-го бруса. Фасады. 2
FREELANCE.RU
Toggle navigation
Нанять фрилансера
Заказчику
Найти по специализации
Найти по услугам
Провести конкурс
Разместить задание
Виртуальный HR
Найти студию
Другое
Найти работу
Фрилансеру
Найти задание
Присоединиться к команде
Участвовать в конкурсе
Предложить услугу
Другое
Возможности
Для заказчика
Для фрилансера
Вход
Разместить задание
▲