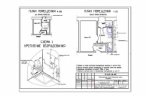
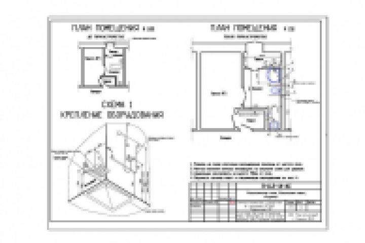
Перепланировка СУ в районной больнице для маломобильных групп
Для полной функциональности этого сайта необходимо включить JavaScript.
Кодинск
Могу работать на отлично..., но за деньги!
Владимир Поляков
Zavxoz1977
Рейтинг: 138
не верифицирован
Всего отзывов:
2
0
Выполнил заданий:
3
Активность:
Работ в портфолио:
28
Типовых услуг:
0
Работ на продажу:
0
Зарегистрирован:
04.06.2015
Был на сайте:
2024-08-05 в 20:06
inbox
whatsapp
polvov@mail.ru
Предложить работу
Добавить в избранное
Добавить рекомендацию
Пожаловаться
Инженерия
21
0
Перепланировка СУ в районной больнице для маломобильных групп
Используемые навыки:
Проектирование объектов
Описание
Решение
Результат
Соавторы
Презентация проекта
Примеры реализации
Описание
Презентация проекта
Оценили проект:
0
×
Оценили проект
×
Авторизация
Для того чтобы оценивать проекты, вам нужно войти на сайт
Другие проекты
Все проекты
Реконструкция магазина автозапчастей (пристройка)
Крыльцо. КЖ/КМ. Стоматология в жилом доме.
Коттедж из профилированного бруса. Фасады.
FREELANCE.RU
Toggle navigation
Нанять фрилансера
Заказчику
Найти по специализации
Найти по услугам
Провести конкурс
Разместить задание
Виртуальный HR
Найти студию
Другое
Найти работу
Фрилансеру
Найти задание
Присоединиться к команде
Участвовать в конкурсе
Предложить услугу
Другое
Возможности
Для заказчика
Для фрилансера
Вход
Разместить задание
▲