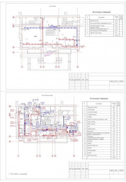
вентиляция банка 290 м2
Для полной функциональности этого сайта необходимо включить JavaScript.
Феодосия
На сайте с: 11.02.2016
Мария Завражных
maria.zavrazh
Рейтинг: 71
не верифицирован
Всего отзывов:
0
Работ в портфолио:
11
Типовых услуг:
0
Работ на продажу:
0
Была на сайте:
2024-08-07 в 16:38
89780499594
inbox
Предложить работу
Добавить в избранное
Добавить рекомендацию
Пожаловаться
Инженерия
8
0
вентиляция банка 290 м2
Используемые навыки:
Теплоснабжение/Отопление/Вентиляция
Описание
Решение
Результат
Соавторы
Презентация проекта
Примеры реализации
Описание
Система ПВ
Презентация проекта
Оценили проект:
0
×
Оценили проект
×
Авторизация
Для того чтобы оценивать проекты, вам нужно войти на сайт
Другие проекты
Все проекты
Торговые помещения 260 м2
Ремонтные и подсобные помещения РЦ
Местная вентиляция от различных станков
FREELANCE.RU
Toggle navigation
Нанять фрилансера
Заказчику
Найти по специализации
Найти по услугам
Провести конкурс
Разместить задание
Другое
Найти работу
Фрилансеру
Найти задание
Присоединиться к команде
Участвовать в конкурсе
Другое
Возможности
Для заказчика
Для фрилансера
Вход
Разместить задание
▲