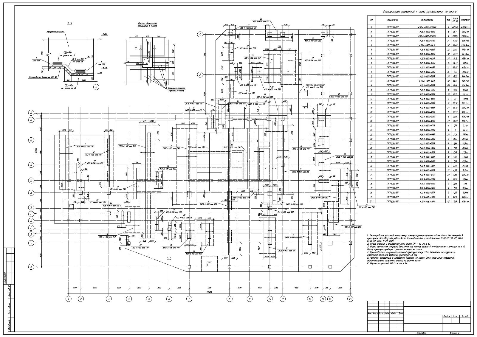
Схема раскладки продольной арматуры фундаментной плиты
Для полной функциональности этого сайта необходимо включить JavaScript.
Пенза
Не бьешься – не добьешься.
Алексей Пугачев
gip-pa
Рейтинг: 96
не верифицирован
Всего отзывов:
0
Работ в портфолио:
26
Типовых услуг:
0
Работ на продажу:
0
Возраст:
39 лет
Зарегистрирован:
15.01.2011
Был на сайте:
2024-06-03 в 19:21
89374224792
inbox
gip-pa@mail.ru
Предложить работу
Добавить в избранное
Добавить рекомендацию
Пожаловаться
Инженерия
29
0
Схема раскладки продольной арматуры фундаментной плиты
Используемые навыки:
Чертежи/Схемы
Описание
Решение
Результат
Соавторы
Презентация проекта
Примеры реализации
Описание
Презентация проекта
Оценили проект:
0
×
Оценили проект
×
Авторизация
Для того чтобы оценивать проекты, вам нужно войти на сайт
Другие проекты
Все проекты
Многофункциональный комплекс
Торгово-офисный комплекс
Свайное поле
FREELANCE.RU
Toggle navigation
Нанять фрилансера
Заказчику
Найти по специализации
Найти по услугам
Провести конкурс
Разместить задание
Виртуальный HR
Найти студию
Другое
Найти работу
Фрилансеру
Найти задание
Присоединиться к команде
Участвовать в конкурсе
Предложить услугу
Другое
Возможности
Для заказчика
Для фрилансера
Вход
Разместить задание
▲