Рейтинг: 42
не верифицирован
Всего отзывов: 0
  • Работ в портфолио: 2
  • Типовых услуг: 0
  • Работ на продажу: 0
Был на сайте:

Рабочие чертежи в программе Archicad

Используемые навыки:

Описание

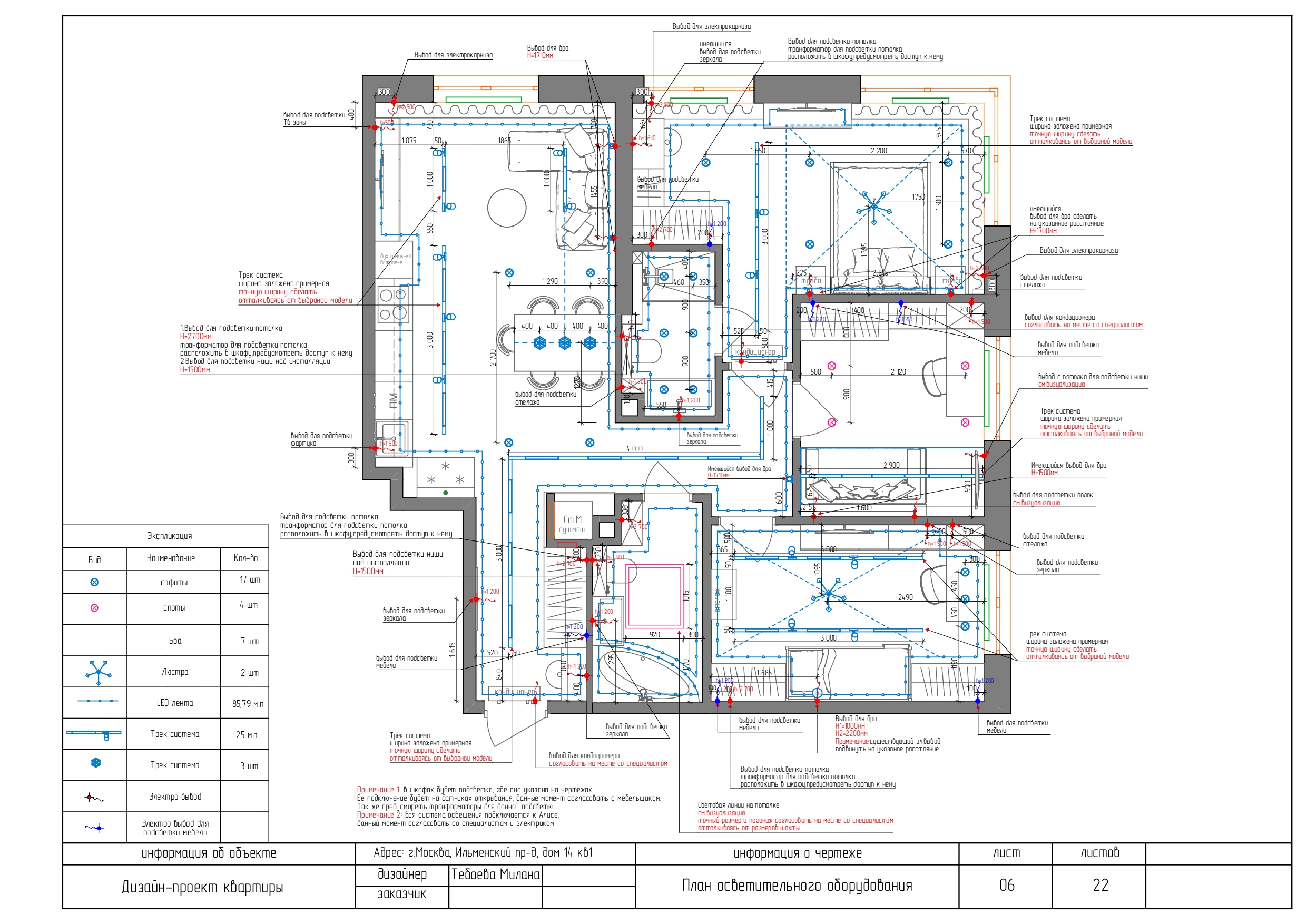
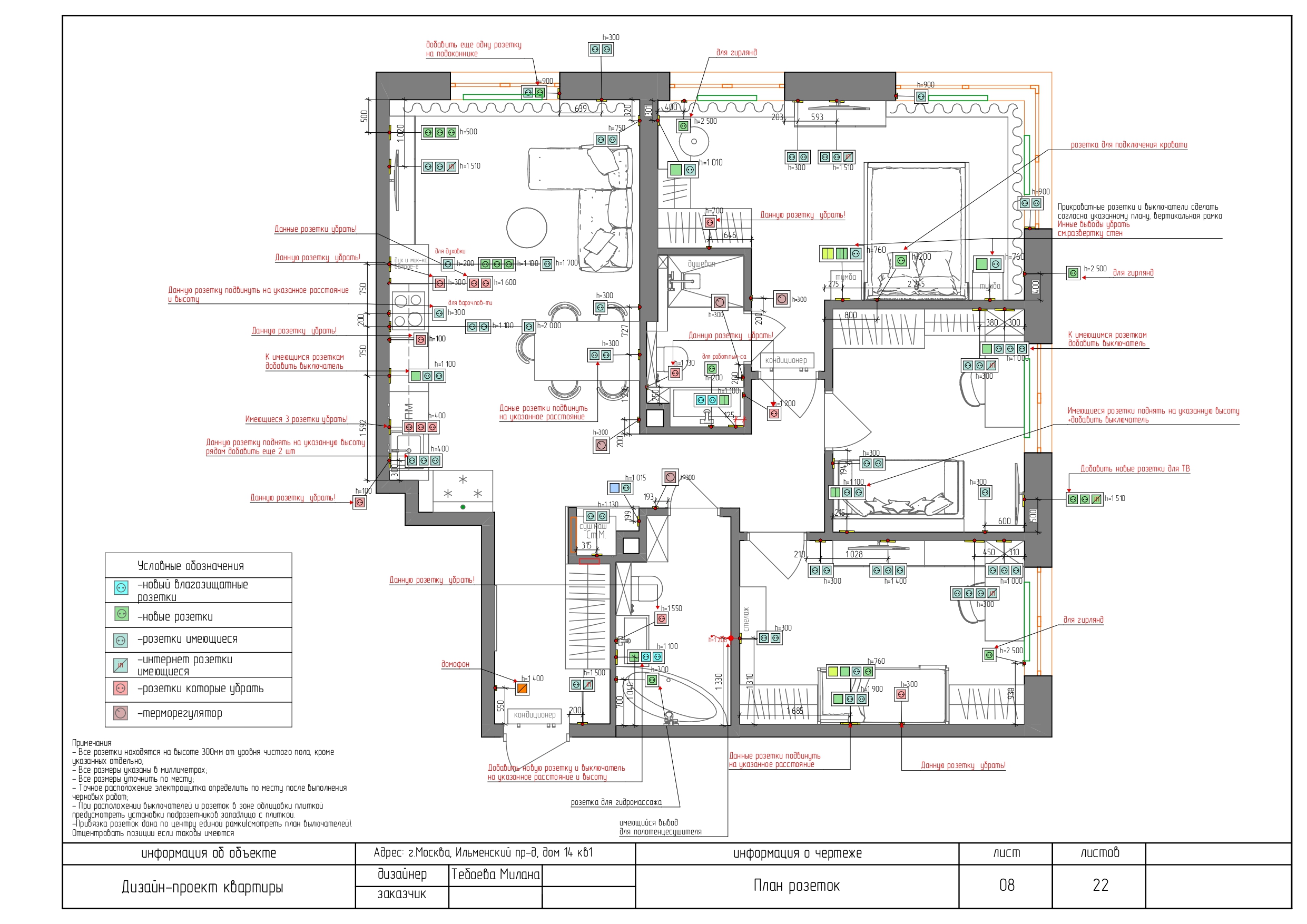
Технические чертежи по дизайн проекту квартиры
-обмерный план
-план демонтажа /монтажа
-план расстановки мебели
-план осветительных приборов
- ведомость розеток и выключателей
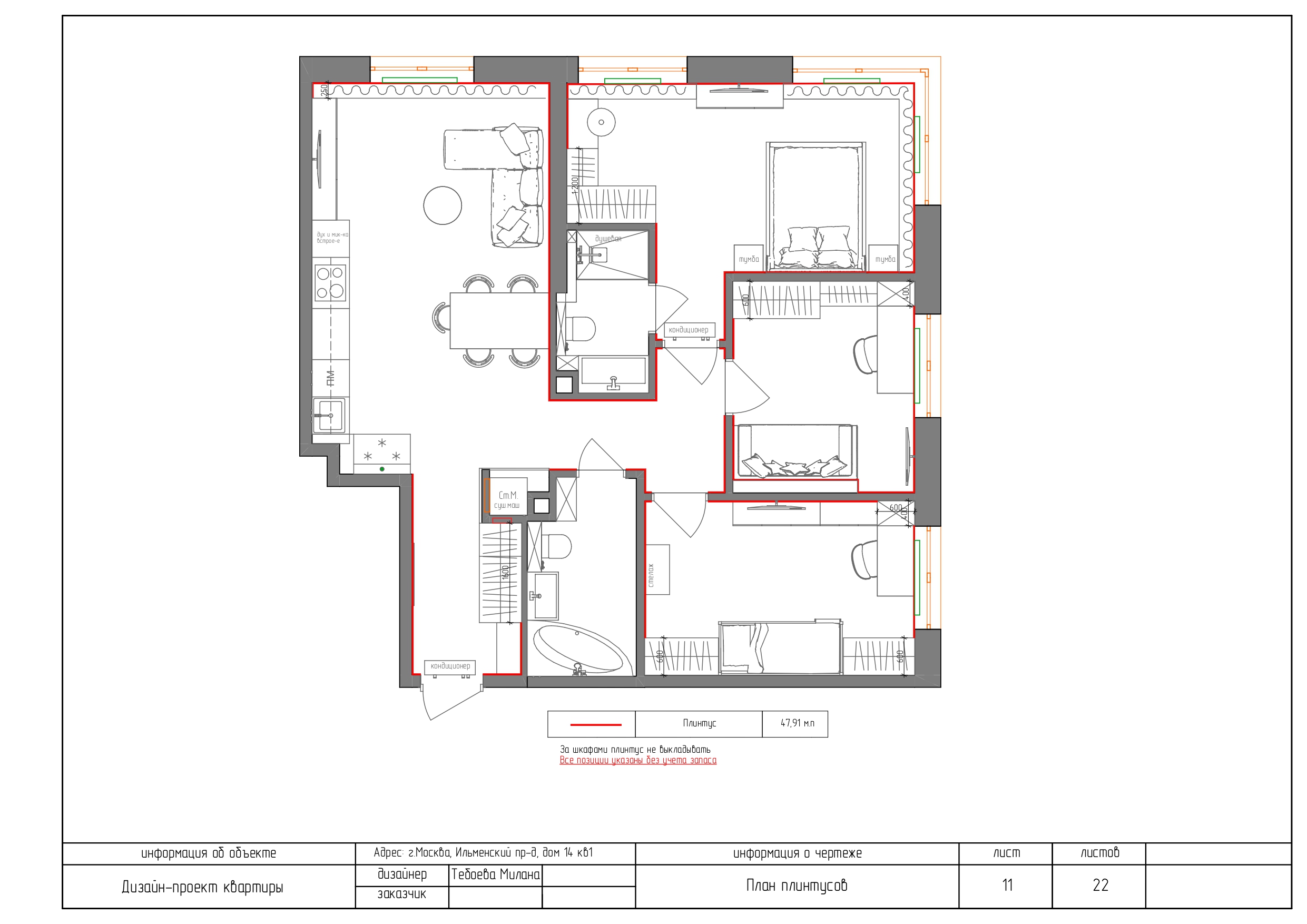
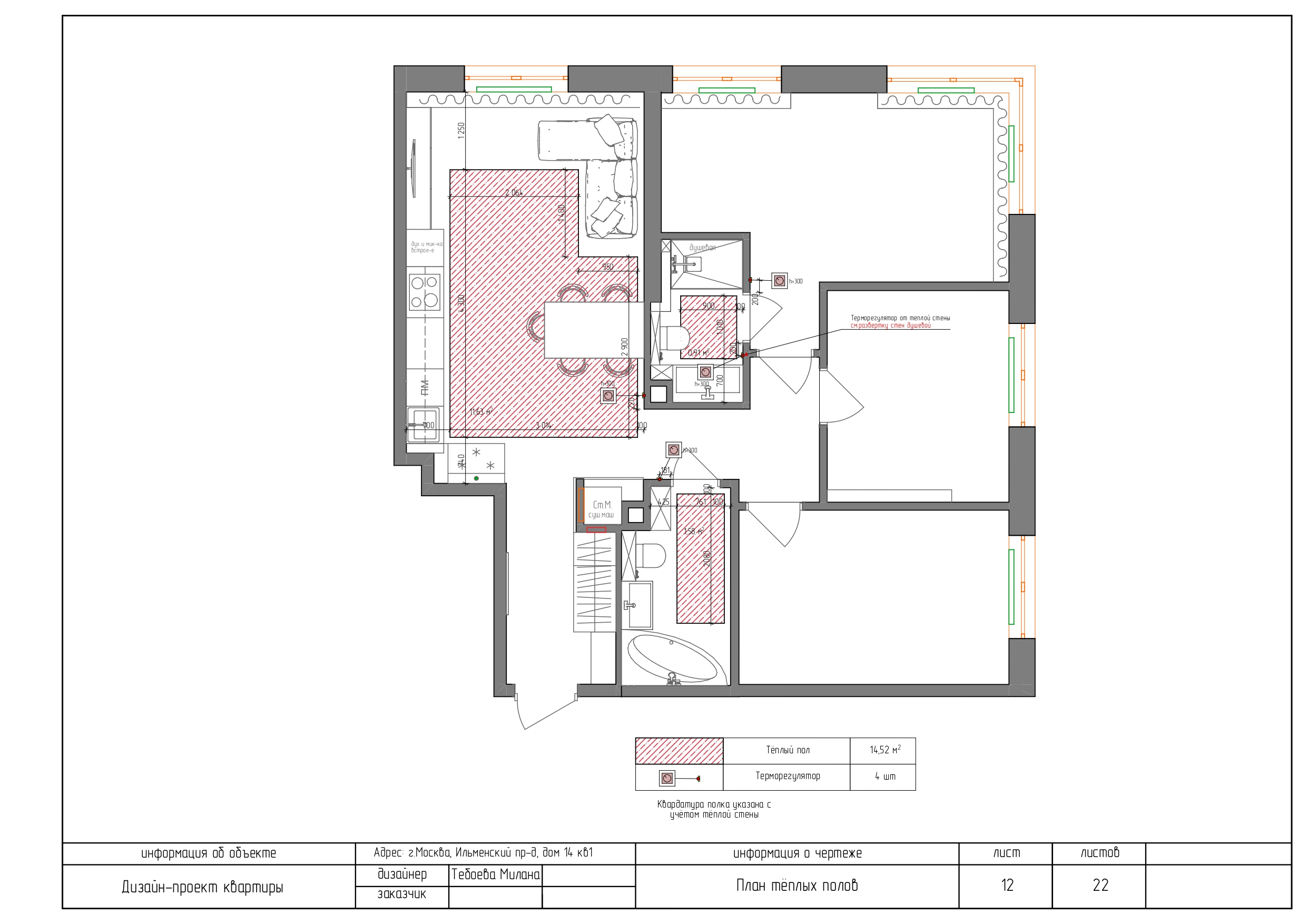
- план теплых полов
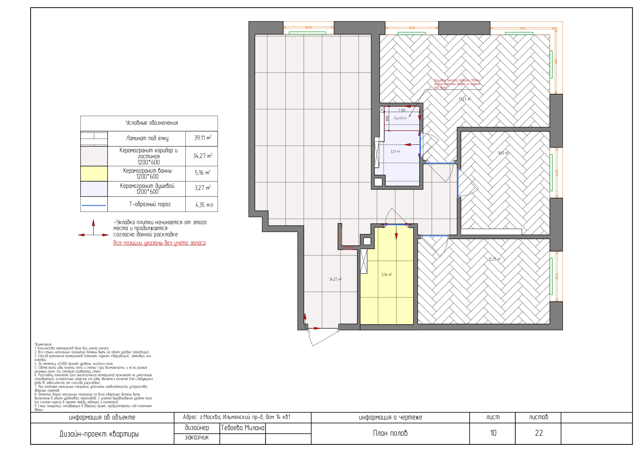
- план полов и плинтусов
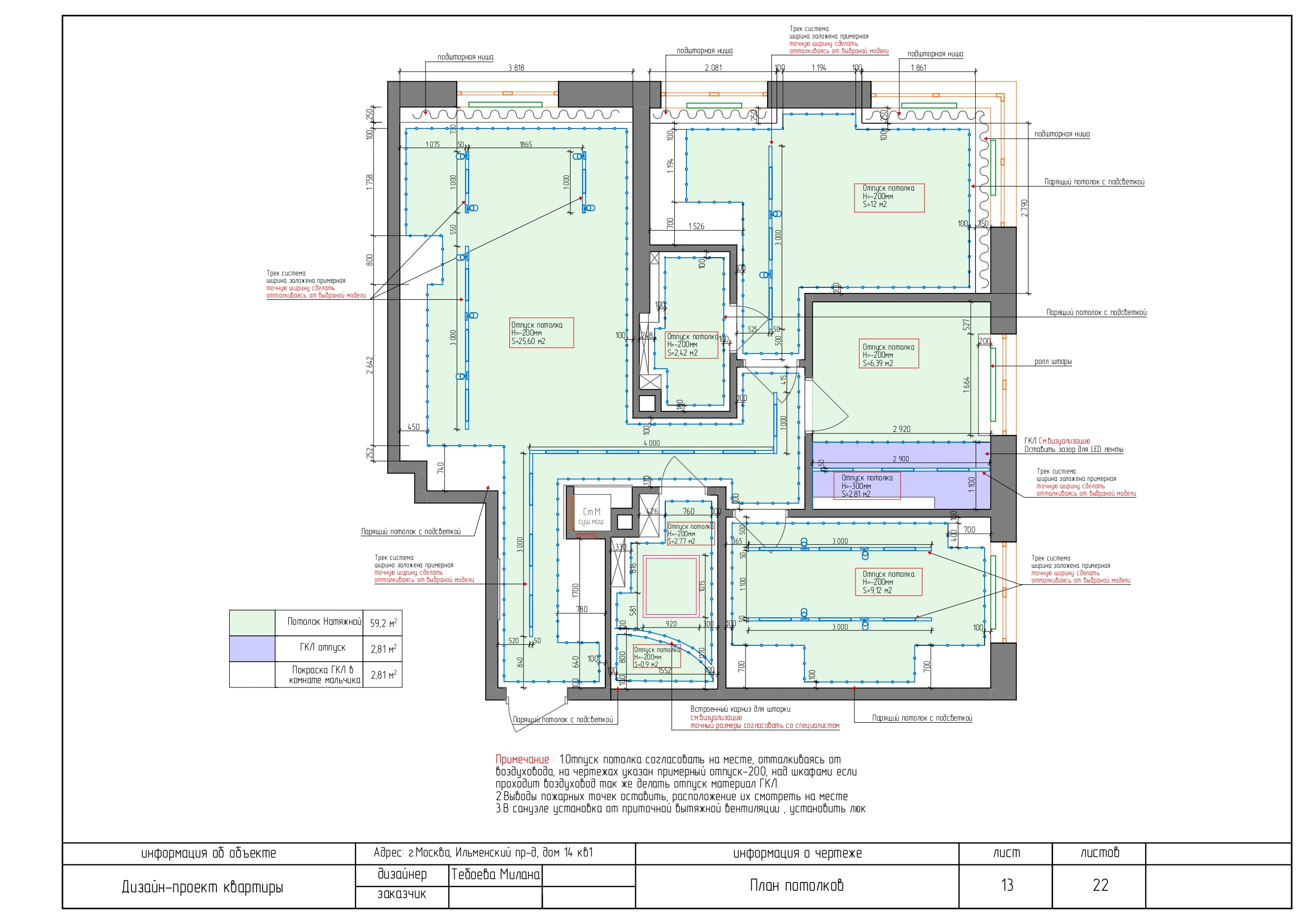
- план потолков
-план сантехники
-план дверей
-развертки всех стен
-ведомость чистовых материалов

Презентация проекта

pic4591986.jpg
итоговый альбом Ильменский_pages-to-jpg-0003.jpg
итоговый альбом Ильменский_pages-to-jpg-0004.jpg
итоговый альбом Ильменский_pages-to-jpg-0005.jpg
итоговый альбом Ильменский_pages-to-jpg-0006.jpg
итоговый альбом Ильменский_pages-to-jpg-0007.jpg
итоговый альбом Ильменский_pages-to-jpg-0008.jpg
итоговый альбом Ильменский_pages-to-jpg-0010.jpg
итоговый альбом Ильменский_pages-to-jpg-0011.jpg
итоговый альбом Ильменский_pages-to-jpg-0012.jpg
итоговый альбом Ильменский_pages-to-jpg-0013.jpg
итоговый альбом Ильменский_pages-to-jpg-0014.jpg
итоговый альбом Ильменский_pages-to-jpg-0015.jpg
итоговый альбом Ильменский_pages-to-jpg-0016.jpg
итоговый альбом Ильменский_pages-to-jpg-0017.jpg
итоговый альбом Ильменский_pages-to-jpg-0018.jpg
итоговый альбом Ильменский_pages-to-jpg-0019.jpg
итоговый альбом Ильменский_pages-to-jpg-0020.jpg
итоговый альбом Ильменский_pages-to-jpg-0021.jpg
итоговый альбом Ильменский_pages-to-jpg-0022.jpg

Оценили проект:

0