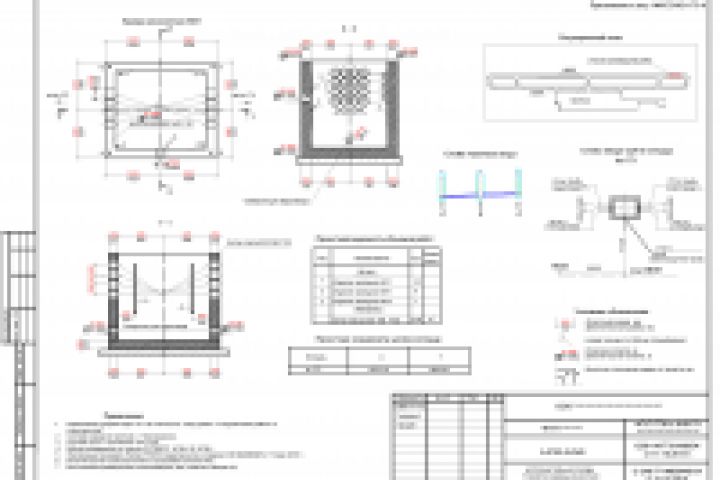
бетонирование стенок колодца
Для полной функциональности этого сайта необходимо включить JavaScript.
Пенза
На сайте с: 04.10.2014
Андрей Киселёв
kiselev73ul
Рейтинг: 200
не верифицирован
Всего отзывов:
0
Активность:
Работ в портфолио:
20
Типовых услуг:
0
Работ на продажу:
0
Был на сайте:
2024-08-27 в 10:52
+79374335332
inbox
kiselev73ul@mail.ru
Вконтакте
Предложить работу
Добавить в избранное
Добавить рекомендацию
Пожаловаться
Инженерия
36
0
бетонирование стенок колодца
Описание
Решение
Результат
Соавторы
Презентация проекта
Примеры реализации
Описание
Презентация проекта
Оценили проект:
0
×
Оценили проект
×
Авторизация
Для того чтобы оценивать проекты, вам нужно войти на сайт
Другие проекты
Все проекты
бетонирование плиты перекрытия колодца
укладка трубы с устройством песчаного основания
схема разбивки фундамента
FREELANCE.RU
Toggle navigation
Нанять фрилансера
Заказчику
Найти по специализации
Найти по услугам
Провести конкурс
Разместить задание
Виртуальный HR
Другое
Найти работу
Фрилансеру
Найти задание
Присоединиться к команде
Участвовать в конкурсе
Предложить услугу
Другое
Возможности
Для заказчика
Для фрилансера
Вход
Разместить задание
▲