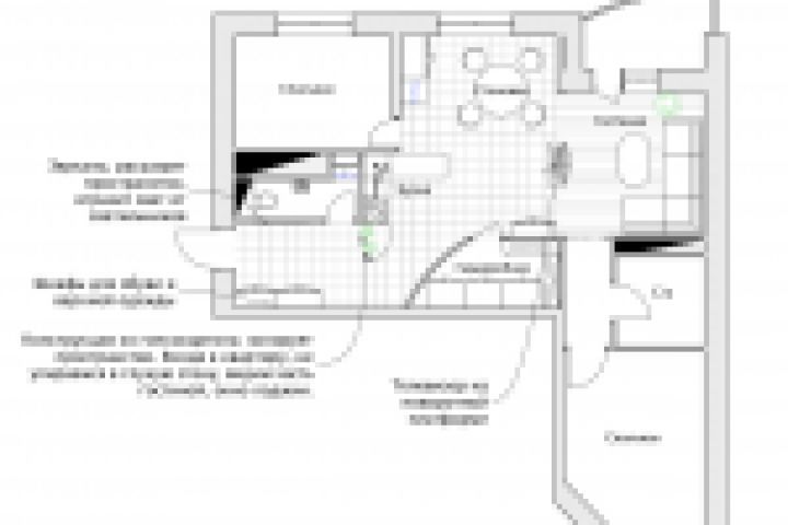
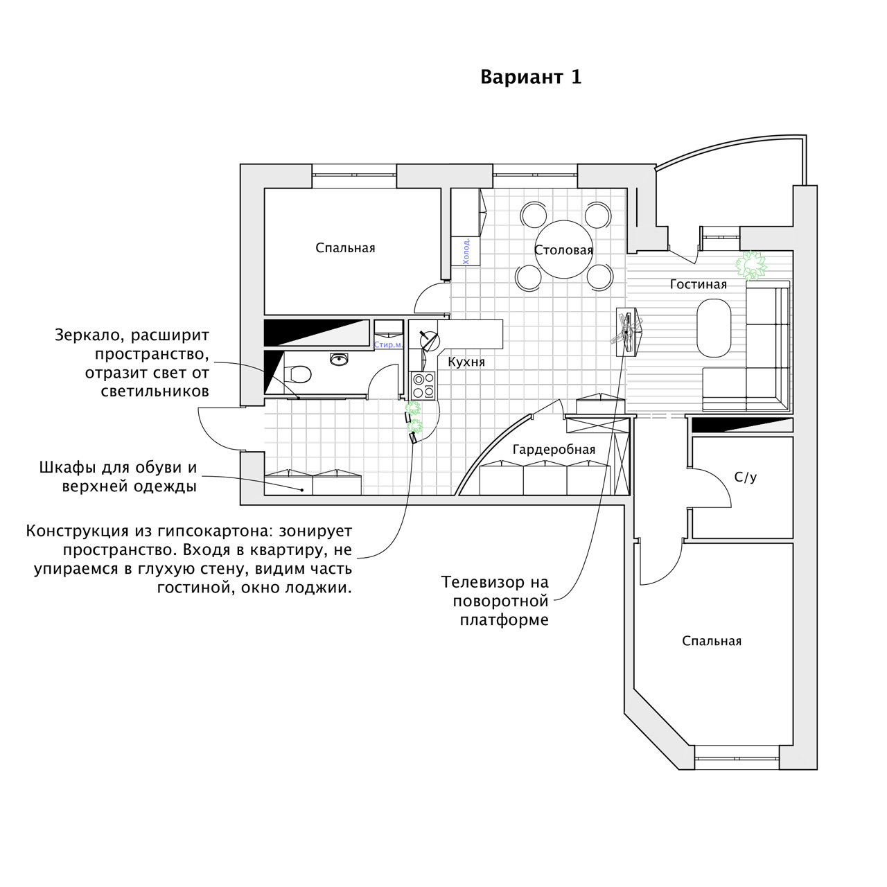
Эскиз перепланировки 3х комнатной квартиры
Для полной функциональности этого сайта необходимо включить JavaScript.
Москва
35 лет
На сайте с: 05.03.2014
Марина Разуваева
Razumarin
Рейтинг: 104
не верифицирован
Всего отзывов:
0
Опубликовала заданий:
2
Работ в портфолио:
34
Типовых услуг:
0
Работ на продажу:
0
Была на сайте:
2024-08-28 в 11:14
Предложить работу
Добавить в избранное
Добавить рекомендацию
Пожаловаться
Инженерия
10
0
Эскиз перепланировки 3х комнатной квартиры
Используемые навыки:
Чертежи/Схемы
Описание
Решение
Результат
Соавторы
Презентация проекта
Примеры реализации
Описание
Презентация проекта
Оценили проект:
0
×
Оценили проект
×
Авторизация
Для того чтобы оценивать проекты, вам нужно войти на сайт
Другие проекты
Все проекты
Салон красоты в Гусарской Балладе
Визуализация жилого микрорайона
Интерьер эко-дома
FREELANCE.RU
Toggle navigation
Нанять фрилансера
Заказчику
Найти по специализации
Найти по услугам
Провести конкурс
Разместить задание
Другое
Найти работу
Фрилансеру
Найти задание
Присоединиться к команде
Участвовать в конкурсе
Другое
Возможности
Для заказчика
Для фрилансера
Вход
Разместить задание
▲