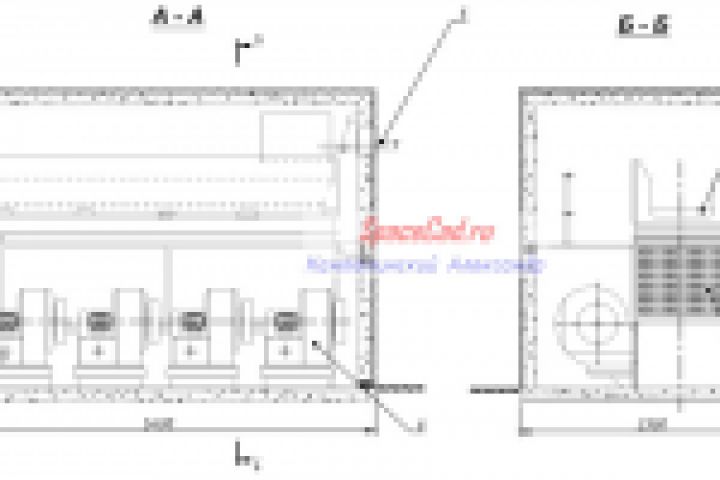
Морозильная камера
Для полной функциональности этого сайта необходимо включить JavaScript.
Одесса
Александр Канталинский
spacecad
Рейтинг: 186
не верифицирован
Всего отзывов:
0
Активность:
Работ в портфолио:
96
Типовых услуг:
0
Работ на продажу:
0
Зарегистрирован:
01.11.2013
Был на сайте:
2024-08-28 в 13:50
inbox
spacecad.ru
Предложить работу
Добавить в избранное
Добавить рекомендацию
Пожаловаться
Инженерия
30
0
Морозильная камера
Используемые навыки:
Чертежи/Схемы
Описание
Решение
Результат
Соавторы
Презентация проекта
Примеры реализации
Описание
Презентация проекта
Оценили проект:
0
×
Оценили проект
×
Авторизация
Для того чтобы оценивать проекты, вам нужно войти на сайт
Другие проекты
Все проекты
Схема расположения монолитного бассейна Бсм1
Проект 9-ти этажного дома
Соединение шпилькой. Кронштейн.
FREELANCE.RU
Toggle navigation
Нанять фрилансера
Заказчику
Найти по специализации
Найти по услугам
Провести конкурс
Разместить задание
Виртуальный HR
Найти студию
Другое
Найти работу
Фрилансеру
Найти задание
Присоединиться к команде
Участвовать в конкурсе
Предложить услугу
Другое
Возможности
Для заказчика
Для фрилансера
Вход
Разместить задание
▲