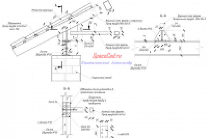
Чертеж узлов навеса
Для полной функциональности этого сайта необходимо включить JavaScript.
Одесса
Александр Канталинский
spacecad
Рейтинг: 186
не верифицирован
Всего отзывов:
0
Активность:
Работ в портфолио:
96
Типовых услуг:
0
Работ на продажу:
0
Зарегистрирован:
01.11.2013
Был на сайте:
2024-08-28 в 13:50
inbox
spacecad.ru
Предложить работу
Добавить в избранное
Добавить рекомендацию
Пожаловаться
Инженерия
36
0
Чертеж узлов навеса
Используемые навыки:
Строительные конструкции
Описание
Решение
Результат
Соавторы
Презентация проекта
Примеры реализации
Описание
Презентация проекта
Оценили проект:
0
×
Оценили проект
×
Авторизация
Для того чтобы оценивать проекты, вам нужно войти на сайт
Другие проекты
Все проекты
Способ соединения алюминиевого композита
Разборка корпуса из пластика
Втулка рессоры 2
FREELANCE.RU
Toggle navigation
Нанять фрилансера
Заказчику
Найти по специализации
Найти по услугам
Провести конкурс
Разместить задание
Виртуальный HR
Найти студию
Другое
Найти работу
Фрилансеру
Найти задание
Присоединиться к команде
Участвовать в конкурсе
Предложить услугу
Другое
Возможности
Для заказчика
Для фрилансера
Вход
Разместить задание
▲