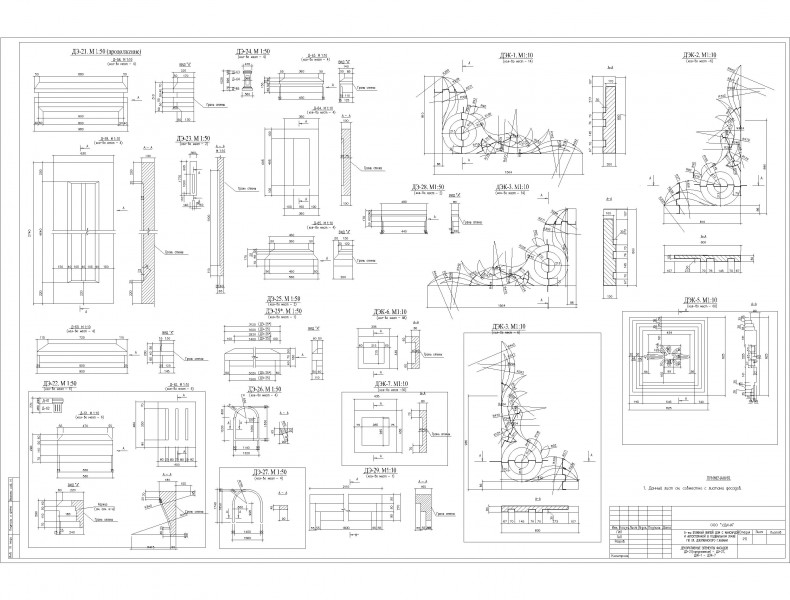
Разработка декоративных элементов фасада
Для полной функциональности этого сайта необходимо включить JavaScript.
Москва
На сайте с: 25.02.2011
Альбина Хамидуллина
k.albina.d
Рейтинг: 183
не верифицирован
Всего отзывов:
0
Работ в портфолио:
133
Типовых услуг:
0
Работ на продажу:
0
Была на сайте:
2024-09-27 в 11:51
8(963)7810293
inbox
telegram
albinakhamidullina.ru
Предложить работу
Добавить в избранное
Добавить рекомендацию
Пожаловаться
Дизайн пространства
15
0
Разработка декоративных элементов фасада
Используемые навыки:
Архитектура зданий и сооружений
Описание
Решение
Результат
Соавторы
Презентация проекта
Примеры реализации
Описание
Презентация проекта
Оценили проект:
0
×
Оценили проект
×
Авторизация
Для того чтобы оценивать проекты, вам нужно войти на сайт
Другие проекты
Все проекты
Интерьер загородного дома(мансарда)
Проект спальни в современном стиле
Проект 3-хкомнатной квартиры( ЖК Яуза-парк,Москва)
FREELANCE.RU
Toggle navigation
Нанять фрилансера
Заказчику
Найти по специализации
Найти по услугам
Провести конкурс
Разместить задание
Другое
Найти работу
Фрилансеру
Найти задание
Присоединиться к команде
Участвовать в конкурсе
Другое
Возможности
Для заказчика
Для фрилансера
Вход
Разместить задание
▲