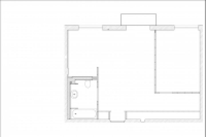
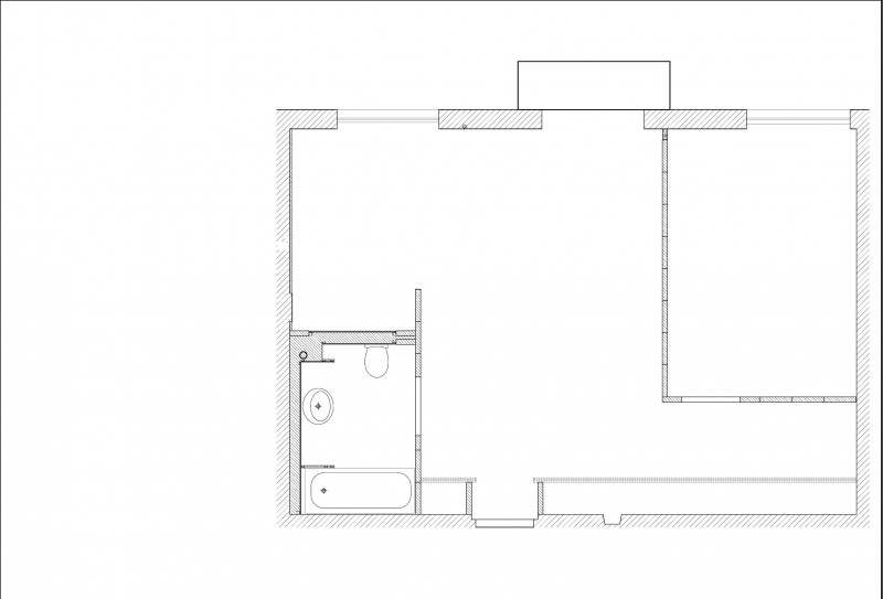
стандартный комплект чертежей для квартиры
Для полной функциональности этого сайта необходимо включить JavaScript.
Санкт-Петербург
На сайте с: 10.09.2015
Яна Козлова
YanaKozlova
Рейтинг: 193
не верифицирован
Всего отзывов:
0
Активность:
Работ в портфолио:
93
Типовых услуг:
0
Работ на продажу:
0
Была на сайте:
2024-10-07 в 17:44
inbox
yananowyana@yandex.ru
Предложить работу
Добавить в избранное
Добавить рекомендацию
Пожаловаться
Дизайн пространства
102
0
стандартный комплект чертежей для квартиры
Используемые навыки:
Дизайн интерьеров
Описание
Решение
Результат
Соавторы
Презентация проекта
Примеры реализации
Описание
Презентация проекта
Оценили проект:
0
×
Оценили проект
×
Авторизация
Для того чтобы оценивать проекты, вам нужно войти на сайт
Другие проекты
Все проекты
раскладка потолка фрагмент
стандартный комплект чертежей для квартиры
001
FREELANCE.RU
Toggle navigation
Нанять фрилансера
Заказчику
Найти по специализации
Найти по услугам
Провести конкурс
Разместить задание
Другое
Найти работу
Фрилансеру
Найти задание
Присоединиться к команде
Участвовать в конкурсе
Другое
Возможности
Для заказчика
Для фрилансера
Вход
Разместить задание
▲